- Tylko online
Masz pytania? Chciałbyś negocjować cenę
Zadzwoń! 577 575 011
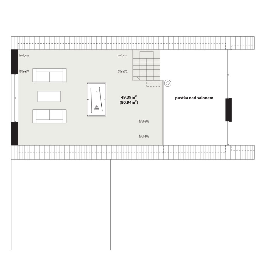
Projekt Hana 4 to dom w stylu nowoczesnej stodoły. Bezokapowa bryła postawiona jest na planie litery "L". Duże przeszklenia i otwarta przestrzeń salonu nadają nowoczesnego charakteru. Dom spełnia program użytkowy w parterze (112,06 m2) a antresola (49,39 m2) jest dodatkową powierzchnią, niewliczoną do powierzchni użytkowej, która może być zaadaptowana jako mieszkalna lub zabudowana w formie strychu. Dom Hana 4 jest prosty i funkcjonalny a wnętrze pozwala na wiele sposobów aranżacji. Standardowo dom wyposażony jest w rekuperację oraz pompę ciepła.
