Informujemy, iż nasz sklep internetowy wykorzystuje technologię plików cookies a jednocześnie nie zbiera w sposób automatyczny żadnych informacji, z wyjątkiem informacji zawartych w tych plikach (tzw. „ciasteczkach”).

Bono 4 B

  • Tylko online

Dane techniczne

powierzchnia
155.7 m²
wysokość
8.15 m
kąt dachu
40 °
szerokość działki
25.75 m
Powierzchnia zabudowy
153.88
kondygnacje
parterowe
garaż
z garażem 1 st.
dach
dach dwuspadowy
konstrukcja
murowane
zabudowa
domy wolnostojące
piwnica
z piwnicą
kubatura
931 m³
dostępne odbicie lustrzane
Nie
Pow. użytkowa
155.7 m²
długość działki
18.35 m
Powierzchnia dachu
216 m²

Opis projektu

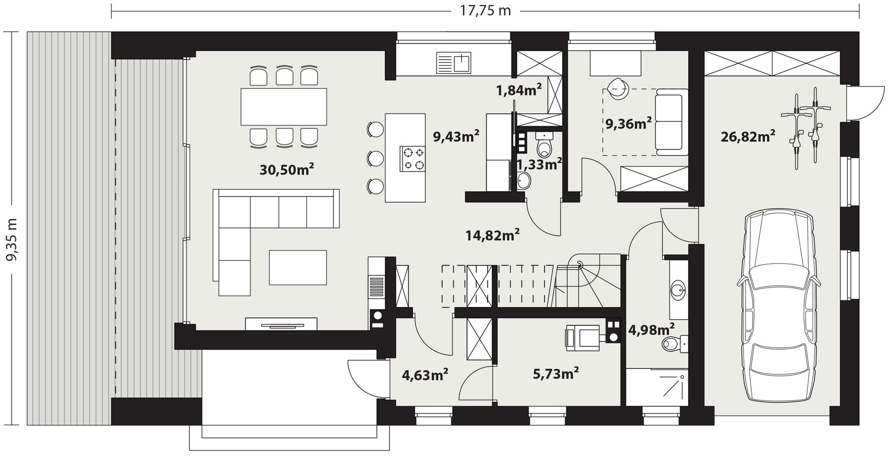
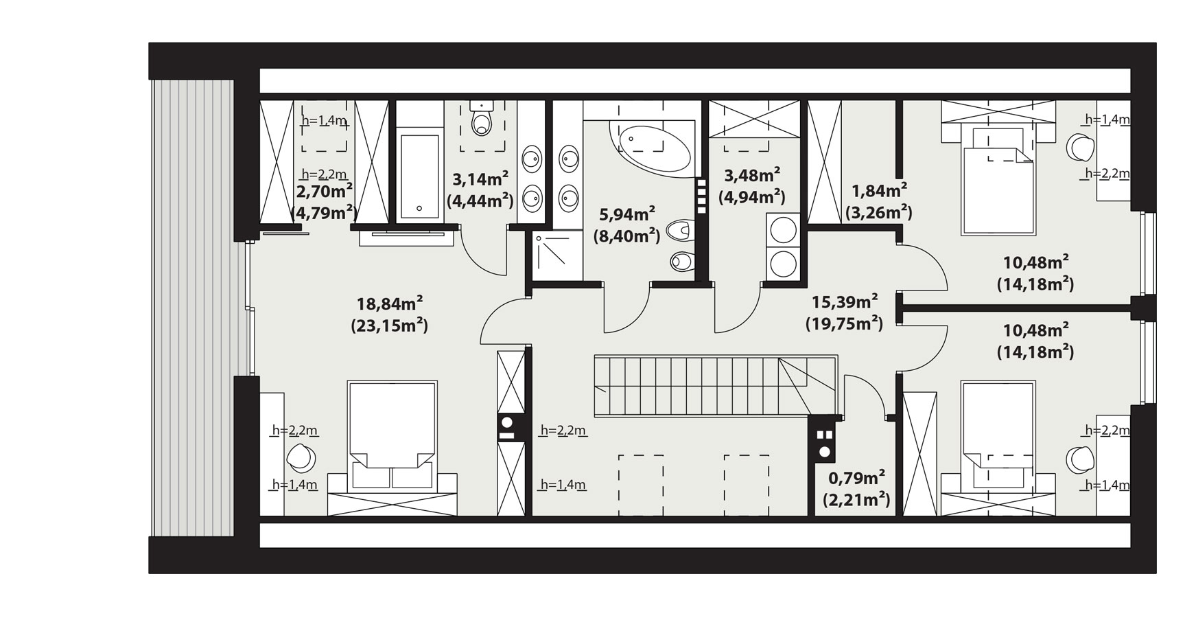
Projekt Bono 4 to propozycja nowoczesnego domu parterowego z poddaszem użytkowym. Poprzez układ na rzucie prostokąta, prostą bryłę przykrytą dwuspadowym dachem bez okapów, utrzymany jest w stylistyce tzw. nowoczesnej stodoły. Współczesny, minimalistyczny charakter budynku uzyskano dzięki elewacjom wykończonym białym tynkiem, urozmaiconym szarą płytką elewacyjną. Dom Bono 4, który kształtem nawiązuje do tradycyjnych wzorców typowych dla terenów wiejskich, we wnętrzu zachował bardzo przejrzysty i funkcjonalny program użytkowy dla 4 osobowej rodziny. Parter zdominowany jest przez otwartą część dzienną z jadalnią i salonem które posiadają przeszkloną ścianę z wyjściem na zadaszony taras. Kuchnia ma możliwość zamknięcia ścianami jako osobnego pomieszczenia. Garaż, który dostępny jest z korytarza można zaadaptować jako dodatkowe pomieszczenia mieszkalne lub warsztat/pokój hobby. Na poddaszu zlokalizowano trzy wygodne sypialnie i liczne pomieszczenia pomocnicze jak pralnia, garderoba. Dom ten można sytuować krótszym lub dłuższym bokiem do wjazdu na działkę (wersje A i B)

Rzuty

Pierwsza kondygnacja
Druga kondygnacja

Elewacje

Sytuacja

O autorze projektu Bono 4 B

4 900 zł

Tylko u nas możesz negocjować cenę!
Skorzystaj z tej możliwości.

Lustrzane odbicie: niedostępne.

Masz dodatkowe pytania?
Zadzwoń lub zamów rozmowę.

Zamów rozmowę

Pomożemy Ci dopasować do twoich potrzeb mymarzony projekt, wpisz swój numer telefonu nasz konsultant oddzwoni.

Negocjuj cenę projektu Bono 4 B

Zapytaj pytanie o projekt Bono 4 B

Oceny i komentarze

Napisz swoją opinię