- Tylko online
Masz pytania? Chciałbyś negocjować cenę
Zadzwoń! 577 575 011
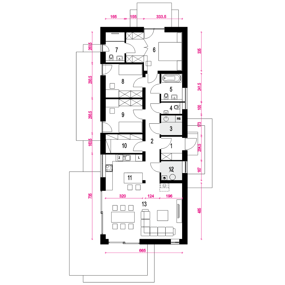
Projekt domu jednorodzinnego Natan III to nowoczesnych dom typu stodoła. Zaprojektowany jest na planie wydłużonego prostokąta, z prostym dwuspadowym dachem. Jest to propozycja kompaktowego domu parterowego przeznaczonego dla czteroosobowej rodziny. Projekt posiada sporych rozmiarów strefę dzienną z dużą kuchnią, salonem z jadalnią, nad którymi zaprojektowano otwarty strop oraz funkcjonalną strefę nocną z trzema sypialniami w tym jedna z prywatną łazienką i garderobą, duża ogólnodostępna łazienka z oknem, oraz kotłownia. Projekt przewiduje nowoczesne rozwiązania instalacyjne: wentylację mechaniczną oraz piec gazowy oraz prostą konstrukcję i bryłę, co z pewnością będzie miało przełożenie w kosztach budowy i odczuwalne w trakcie realizacji.fundamenty: BETONOWE ściany zewnętrzne: PUSTAK CERAM. POROTHERM+STYROPIAN TERMO ORGANIKA ściany wewnętrzne: PUSTAK POROTHERM rodzaj stropu: DRERWNIANY elewacje: TYNK STRUKTURALNY pokrycie dachu: BLACHA
