- Tylko online
Masz pytania? Chciałbyś negocjować cenę
Zadzwoń! 577 575 011
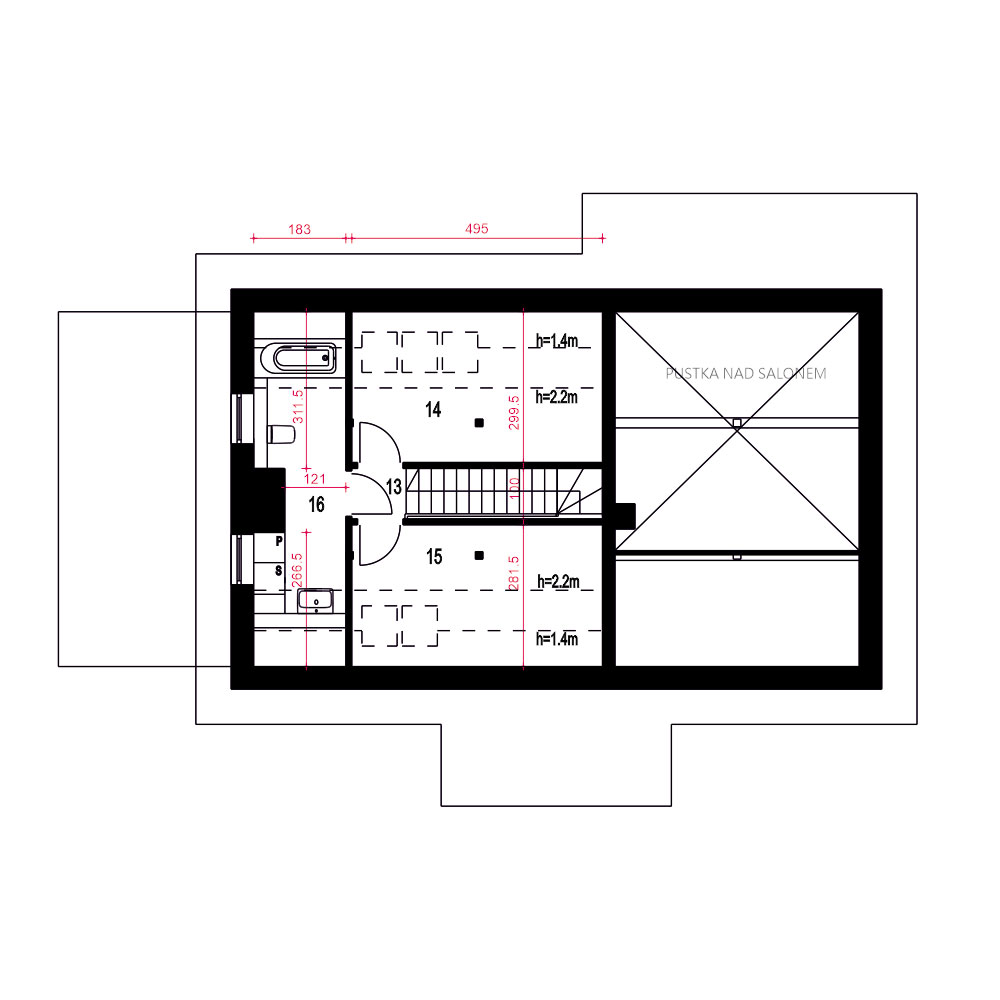
Projekt domu jednorodzinnego z poddaszem użytkowym dla 4 osobowej rodziny oraz wiatą. Prosta bryła jest przekryta dwuspadowym dachem o kącie nachylenia 45 stopni. Dzięki nieskomplikowanej bryle dom będzie tani i prosty w budowie i eksploatacji. Charakter budynku podkreślają wykończenia elewacji okładzina kamienna oraz drewniane wykończenia. Salon z jadalnią nie ma sufitu podwieszanego i jest otwarty aż do dachu. W salonie przewidziano kominek. Kuchnia jest otwarta i umeblowana w kształcie litery L . Obok kuchni zaproponowano stół jadalny. W strefie wejściowej zaprojektowano duży hol, do którego prowadzi wiatrołap. Hol rozprowadza do garderoby, pomieszczenia technicznego, WC, pokoju dla dwóch osób oraz na poddasze. Dwuosobowa sypialnia posiada indywidualna przejściową garderobę oraz niewielka łazienkę z natryskiem. Na poddaszu mamy dwie sypialne oraz łazienkę z pralnia i suszarnią. Projekt Ziomek dedykowany jest szczególnie na tereny podmiejskie, do nowej i starej zabudowy
