- Tylko online
Masz pytania? Chciałbyś negocjować cenę
Zadzwoń! 577 575 011
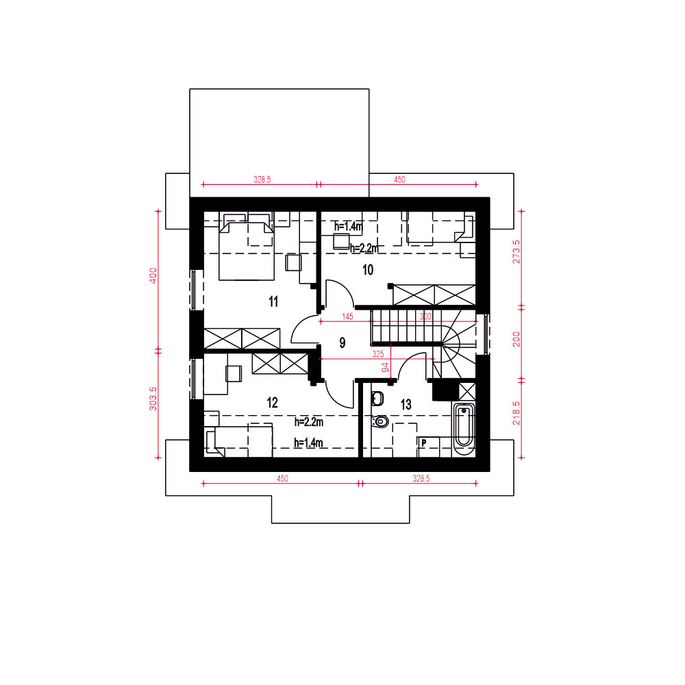
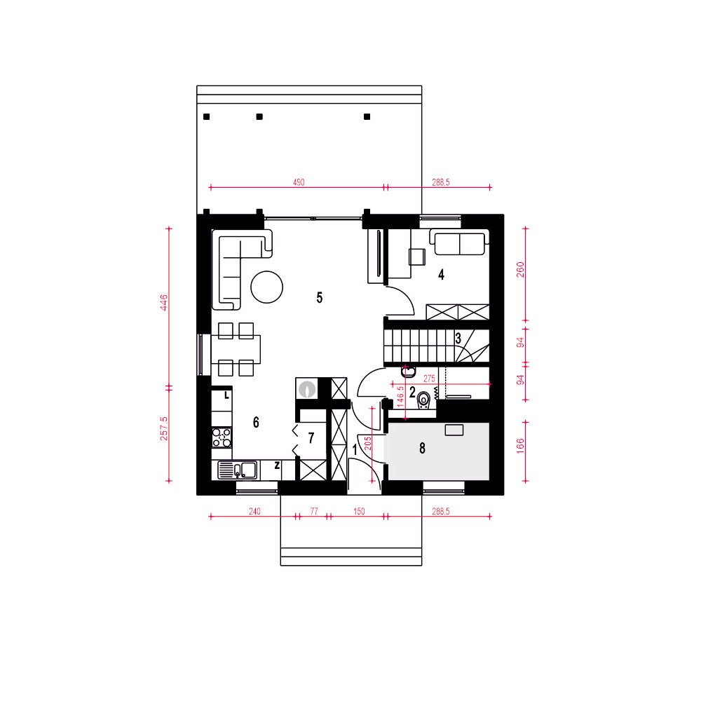
Ekonomiczny, projekt niewielkiego domu jednorodzinnego z dwuspadowym dachem. Figa przewidziana jest dla czteroosobowej rodziny. Jest to propozycja projektu do 70 m2 powierzchni zabudowy nie licząc zadaszonego tarasu. Główne, zadaszone wejście prowadzi do wiatrołapu. Stąd można dostać się do pomieszczenia technicznego oraz do mieszkalnej części dziennej. Pod częścią biegu schodowego zaprojektowano łazienkę. Z salonem połączony jest gabinet. Kuchnia jest otwarta i posiada niewielka spiżarnię. W centralnej części domu zaprojektowano kominek. Obok kuchni przewidziano miejsce na stół. Z salonu wchodzi się schodami na poddasze, gdzie zlokalizowano trzy niewielki sypialnie oraz łazienkę z pralką. Figa to propozycja ekonomicznego i ekologicznego domu, który doskonale sprawdzi się jako dom całoroczny.fundamenty: BETONOWE ściany zewnętrzne: POROTHERM+STYROPIAN TERMO ORGANIKA ściany wewnętrzne: POROTHERM rodzaj stropu: TERIVA elewacje: TYNK STRUKTURALNY pokrycie dachu: DACHÓWKA CERAMICZNA
