- Tylko online
Masz pytania? Chciałbyś negocjować cenę
Zadzwoń! 577 575 011
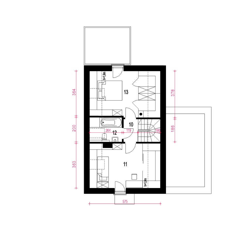
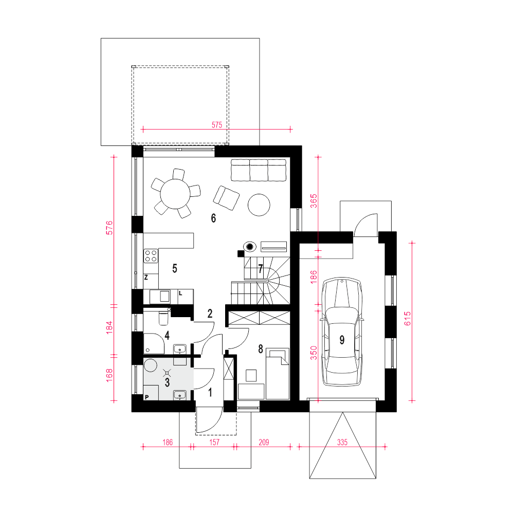
Ada to projekt domu jednorodzinnego z serii ECO - domów ekonomicznych w budowie i użytkowaniu. Ada to nowoczesny dom w stylu stodoły. Seria Eco to autorskie projekty domów naszej pracowni Dom Dla Ciebie. Ada dom jednorodzinnym z poddaszem użytkowym, przewidziany dla 4 osobowej rodziny. Dom przekryty jest ekonomicznym, bezokapowym dachem dwuspadowym na drewnianej więźbie dachowej, opartej na ściance kolankowej wysokości ok 0,9m. Ada to oryginalny i funkcjonalny dom, w którym przy niewielkiej powierzchni udało się zaprojektować aż 4 pokoje, 2 łazienki i kuchnię. Na parterze domu znajduje się cześć ogólnodostępna z otwartym na schody salonem, w którym przewidziano kominek, wygodną jadalnię i nowoczesną kuchnią. Dodatkowo jest tu przewidziany pokój sypialnym oraz łazienka oraz pralnia z gazowym piecem CO. Poddasze tego domu to część prywatna z dwiema sypialniami, każda z możliwością wydzielenia garderoby, oraz wygodna oraz wspólna wygodna łazienka z wanną. Projekt domu Ada to propozycja energooszczędnego domu o oryginalnej funkcji i nowoczesnej bryle.
