- Tylko online
Masz pytania? Chciałbyś negocjować cenę
Zadzwoń! 577 575 011
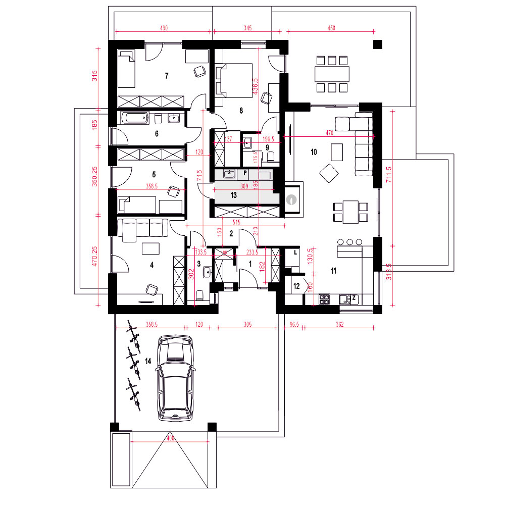
Aura II to propozycja domu dedykowanego 4-5 osobowej rodzinie. Prosta bryła budynku przewidziana na planie kwadratu z wiatą od frontu została przeryta wielospadowym dachem. Nowoczesna stylistyka elewacji stawia na naturalne barwy i materiały. Funkcja domu to 3 pokoje sypialne w tym jedna dwuosobowa z osobną łazienką i garderobą a także wspólna łazienka dla pozostałych mieszkańców. Dodatkowy pokój przewidziany jest jako gabinet, pomieszczenie do pracy zdalnej, dodatkowa sypialnia lub pokój gościnny. Aura II kryje w swej bryle również salon z jadalnią i otwartą kuchnią ze spiżarnią. W strefie komunikacji z najdziemy duże wnękowe szafy i wc. Ze stanowiącego serce domu salonu dostaniemy się na taras.
