- Tylko online
Masz pytania? Chciałbyś negocjować cenę
Zadzwoń! 577 575 011
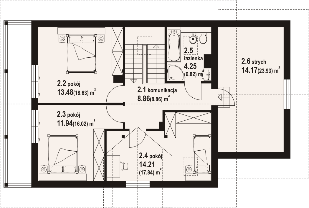
Dom w konstrukcji szkieletu drewnianego. Na parterze salon z aneksem kuchennym, kominkiem oraz wyjściem na taras. Łazienka, komunikacja, wiatrołap, garaż. Na poddaszu trzy pokoje, łazienka, komunikacja, strych. Balkon dostępny z dwóch pokoi. Zwarta bryła budynku oraz dach dwuspadowy sprzyjają szybkiej i taniej budowie oraz niskim kosztom eksploatacji.
