- Tylko online
Masz pytania? Chciałbyś negocjować cenę
Zadzwoń! 577 575 011
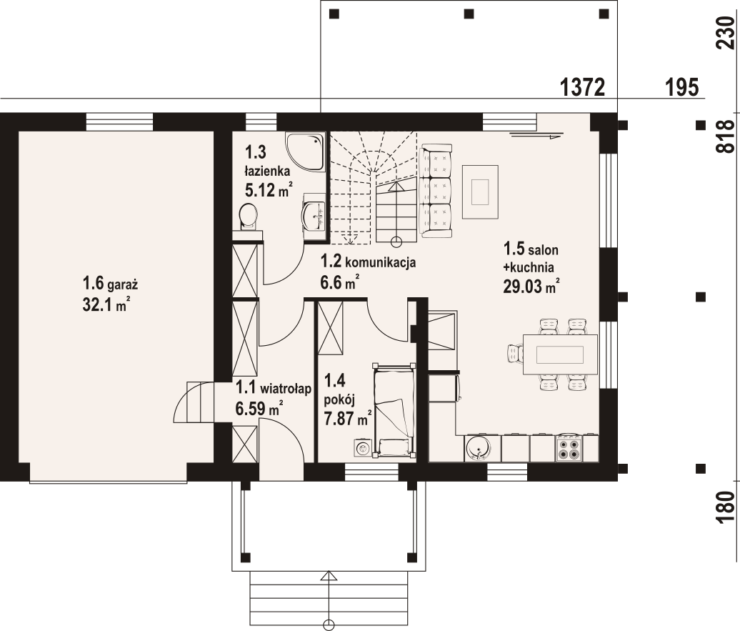
Dom z poddaszem użytkowym. Na parterze salon z aneksem kuchennym, kominkiem oraz wyjściem na zadaszony taras. Pokój, łazienka, komunikacja, wiatrołap oraz garaż. Na poddaszu trzy pokoje, łazienka, komunikacja oraz balkon. Zwarta bryła budynku oraz dach dwuspadowy sprzyjają szybkiej i taniej budowie oraz niskim kosztom eksploatacji.
