- Tylko online
Masz pytania? Chciałbyś negocjować cenę
Zadzwoń! 577 575 011
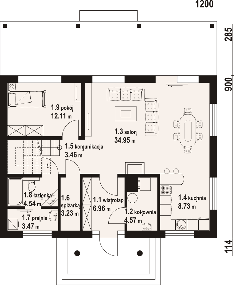
Dom z poddaszem użytkowym. Na parterze salon z kuchnią, kominkiem oraz wyjściem na duży, zadaszony taras. Pokój, łazienka, pralnia, spiżarka, komunikacja, wiatrołap, kotłownia. Na poddaszu cztery pokoje, łazienka, komunikacja. Zwarta bryła budynku sprzyja szybkiej i taniej budowie oraz niskim kosztom eksploatacji.
