- Tylko online
Masz pytania? Chciałbyś negocjować cenę
Zadzwoń! 577 575 011
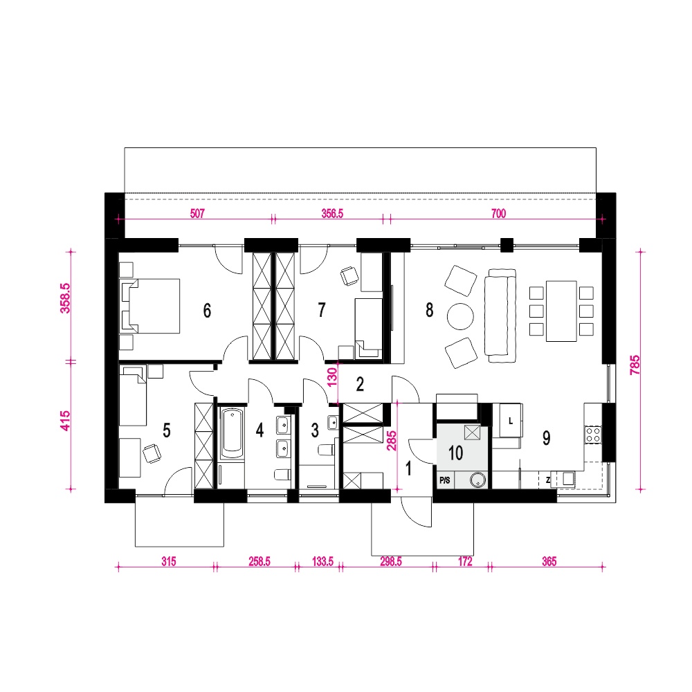
Hyzop bez garażu to projekt nowoczesnego domu parterowego, typu stodoła, przeznaczonego dla 4 do 5cio osobowej rodziny. Zaprojektowany jest w technologii murowanej z prefabrykowaną więźbą dachową, przekryty dwuspadowym dachem. Hyzop to funkcjonalny projekt domu parterowego, łączący strefę ogólnodostępną i prywatną na jednym poziomie. W części wejściowej mamy przewidziany wygodny wiatrołap z szafami wnękowymi i pralnię z c.o. W części ogólnodostępnej mamy przewidziany przestronny i dobrze doświetlony salon z miejscem na wygodny stół jadalniany z widokiem na ogród. Dzięki dużym drzwiom tarasowym od strony ogrodowej, dostaniemy się wprost na zewnętrzny zadaszony taras - zadaszenie tarasu przewidziane jest na całe długości domu. W części ogólnodostępnej projekt przewiduje również wygodną kuchnię z wyspą i lodówką side by side oraz łazienkę dostępną z korytarza. W części prywatnej mamy do dyspozycji trzy pokoje sypialne i wspólną łazienkę z wanną i prysznicem. Hyzop to atrakcyjna propozycja projektu domu energooszczędnego, o nowoczesnym wyglądzie. To projekt domu z serii "eco" - ekonomiczny w budowie i w utrzymaniu - idealna propozycja dla rodzin planujących budowę pierwszego domu.fundamenty: BETONOWE ściany zewnętrzne: POROTHERM+STYROPIAN TERMO ORGANIKA rodzaj stropu i konstrukcja dachu: wiązary prefabrykowane MITEK elewacje: TYNK STRUKTURALNY pokrycie dachu: BLACHA
