- Tylko online
Masz pytania? Chciałbyś negocjować cenę
Zadzwoń! 577 575 011
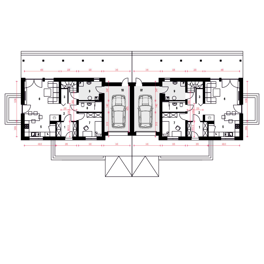
(Uwaga: projekty typu bliźniak oferujemy jako domy dwulokalowe, projekt można zamówić również w zabudowie bliźniaczej) Opis dla jednego segmentu: Rodzynka to projekt domu jednorodzinnego, Z dwuspadowym dachem w układzie kalenicowym względem frontu budynku. Dom dla czteroosobowej rodziny i wyróżnia się uniwersalnym wzornictwem. Wejście główne do domu prowadzi do wiatrołapu z praktycznymi szafami. Na parterze znajduje się dodatkowy pokój. Otwarta kuchnia obejmuje spiżarnię. Serce domu stanowi centralnie umieszczony kominek. Taras, ciągnący się przez cała elewację. Obok kuchni znajduje się miejsce na stół. Z holu można dotrzeć do małej łazienki i pomieszczenia technicznego. Pod drewnianymi schodami znajduje się garderoba. Na piętrze rozmieszczono trzy przytulne sypialnie oraz wspólną łazienkę. Ten projekt stanowi atrakcyjną propozycję ekonomicznego i ekologicznego domu, doskonale dostosowanego do stałego zamieszkania przez cały rok.
