- Tylko online
Masz pytania? Chciałbyś negocjować cenę
Zadzwoń! 577 575 011
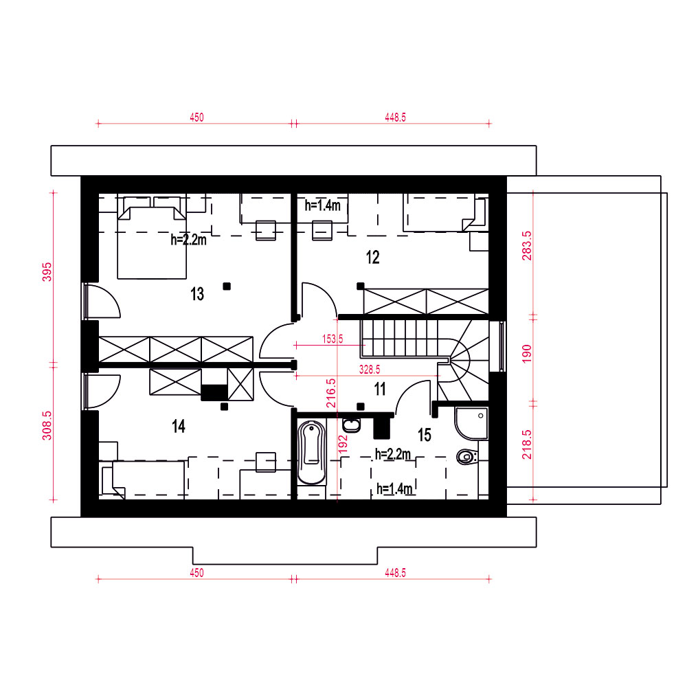
Morwa z garażem to projekt niewielkiego ekonomicznego domu jednorodzinnego z dwuspadowym dachem ustawionym kalenicowo w stosunku do elewacji frontowej. Przewidziany został dla czteroosobowej rodzinie. Zadaszone wejście, prowadzi do wiatrołapu, gdzie znajdują się szafy. i dalej do części dziennej. Do salonu przylega funkcjonalny gabinet. Kuchnia jest otwarta i posiada spiżarnię. W centralnej części domu znajduje się kominek. Z salonu można wyjść na zewnętrzny taras. Obok kuchni przewidziano miejsce na stół. Z holu można się dostać do niewielkiej łazienki i pomieszczenia technicznego z piecem CO, pralką i suszarką. Pod biegiem schodowym zaprojektowano niewielką garderobę. Z holu prowadzą wygodne schody na poddasze, są tu trzy wygodne sypialnie oraz wspólną łazienkę Ten projekt to propozycja ekonomicznego i ekologicznego domu.
