- Tylko online
Masz pytania? Chciałbyś negocjować cenę
Zadzwoń! 577 575 011
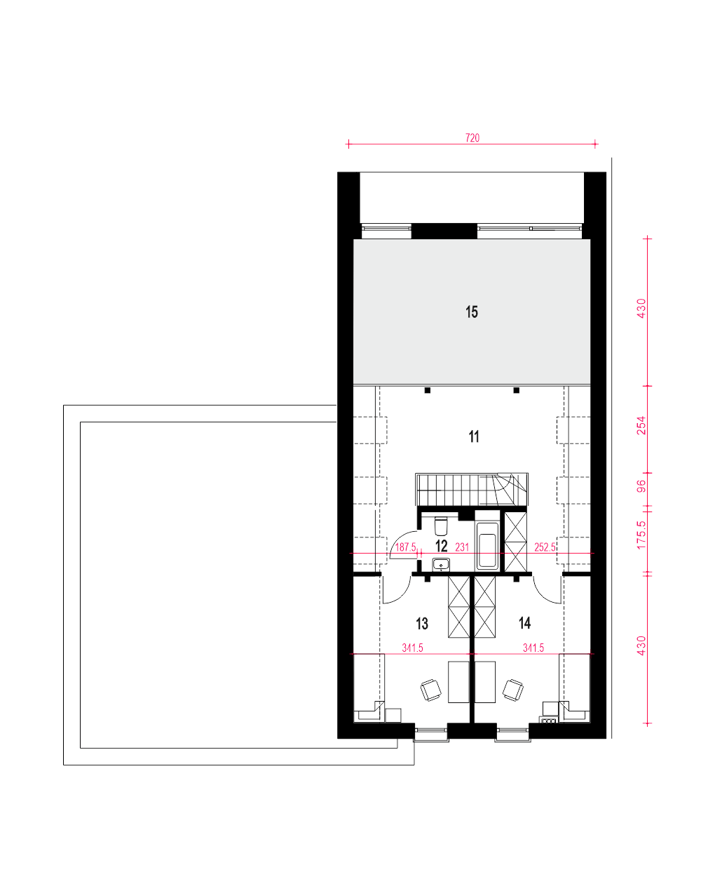
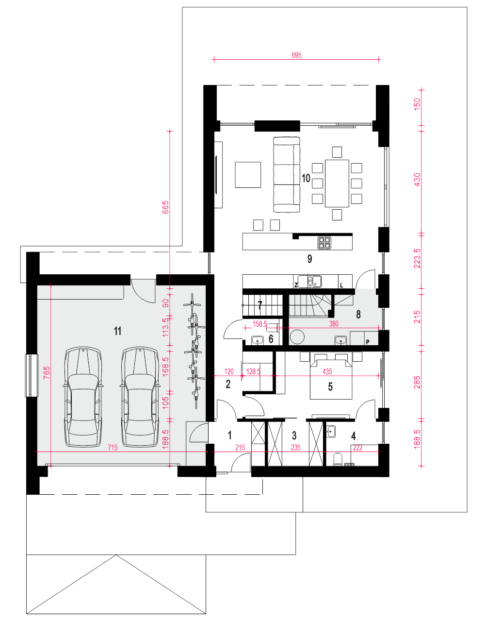
Wygodny z garażem dwustanowiskowym to projekt nowoczesnego domu typu stodoła, z poddaszem użytkowym dla osób poszukujących funkcjonalnego domu mieszkalnego. To projekt o prostej bryle z dużymi przeszkleniami w strefie ogrodowej, z elewacją z okładziny ceramicznej i z drewnem, dachem pokrytymi blachą. Na funkcję budynku składa się parter, gdzie przewidziano wygodną główną sypialnię z garderobą i łazienką, wygodną kuchnię z salonem i jadalnią. Z salonu zaprojektowano wyjście na obszerny taras ogrodowy. Od frontu zaprojektowano wygodny garaż jedno stanowiskowy z płaskim dachem. Na poddaszu przewidziano dużą antresolę, łazienkę i dwa pokoje sypialne. Dom idealnie wpisze się w każdy krajobraz, ale dzięki kolorystyce i materiałom zastosowanym na elewacji będzie się idealnie komponował w otoczeniu natury. Dzięki zastosowaniu pompy ciepła i wentylacji mechanicznej oraz dzięki rozwiązaniom energooszczędnym w tym odpowiedniej grubości izolacji termicznej oraz dzięki ciepłemu montażowi stolarki, dom powinien być ekonomiczny w użytkowaniu.
