- Tylko online
Masz pytania? Chciałbyś negocjować cenę
Zadzwoń! 577 575 011
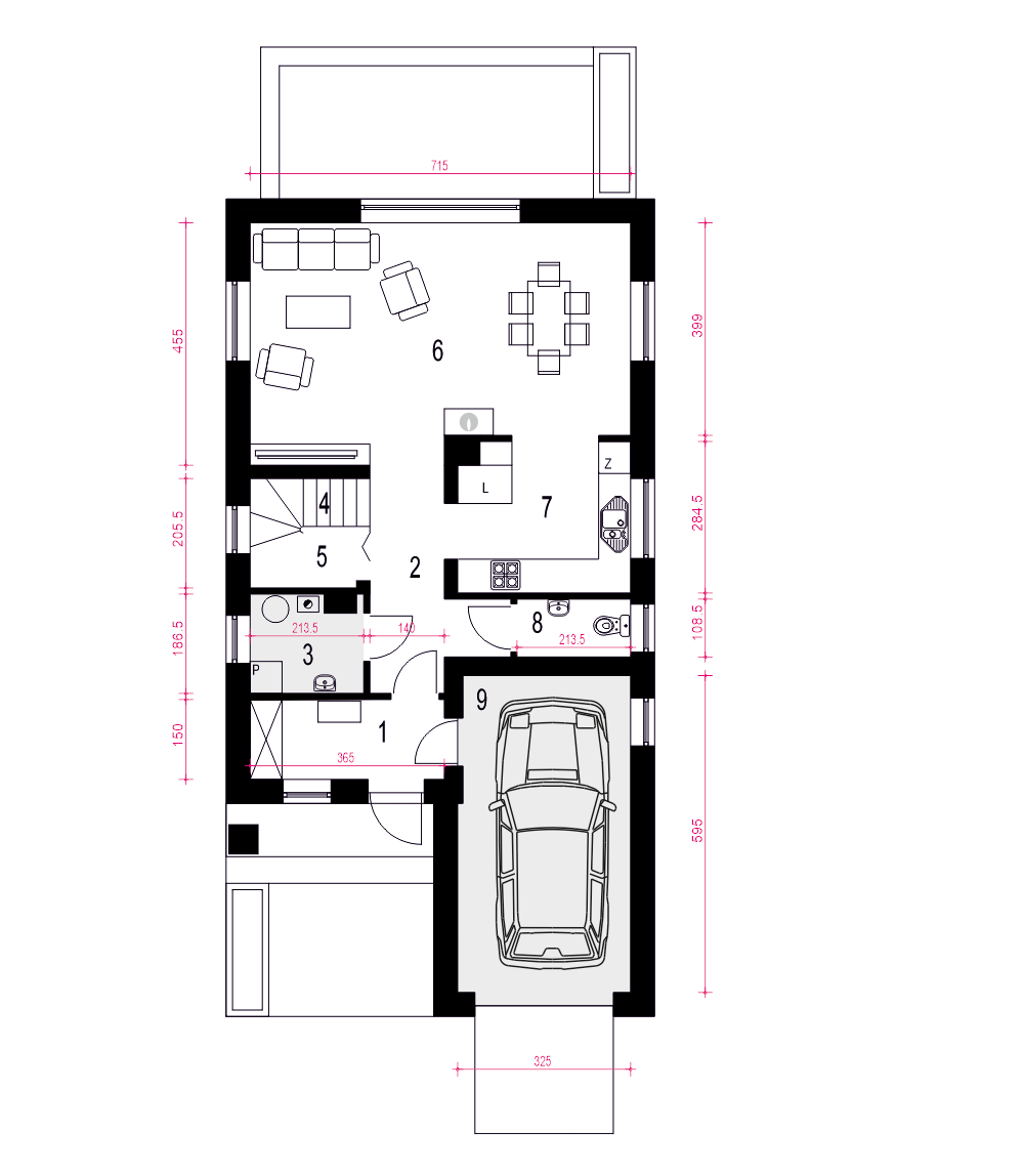
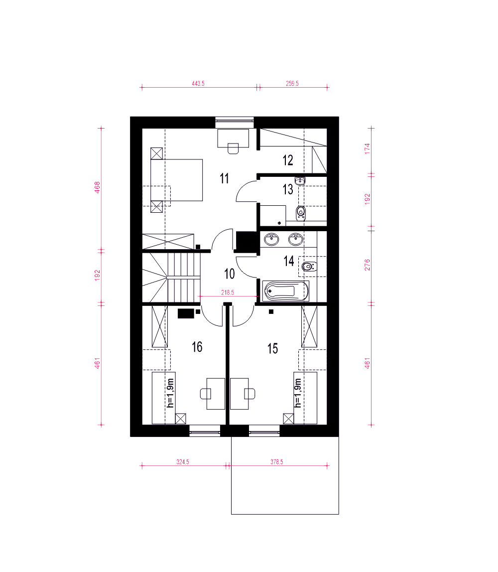
Kosma to kompaktowy projekt dla 4-osobowej rodziny.fundamenty: BETONOWE ściany zewnętrzne: POROTHERM+STYROPIAN TERMO ORGANIKA ściany wewnętrzne: POROTHERM rodzaj stropu: TERIVA elewacje: TYNK STRUKTURALNY, CEGŁA KLINKIEROWA pokrycie dachu: DACHÓWKA CERAMICZNA
