- Tylko online
Masz pytania? Chciałbyś negocjować cenę
Zadzwoń! 577 575 011
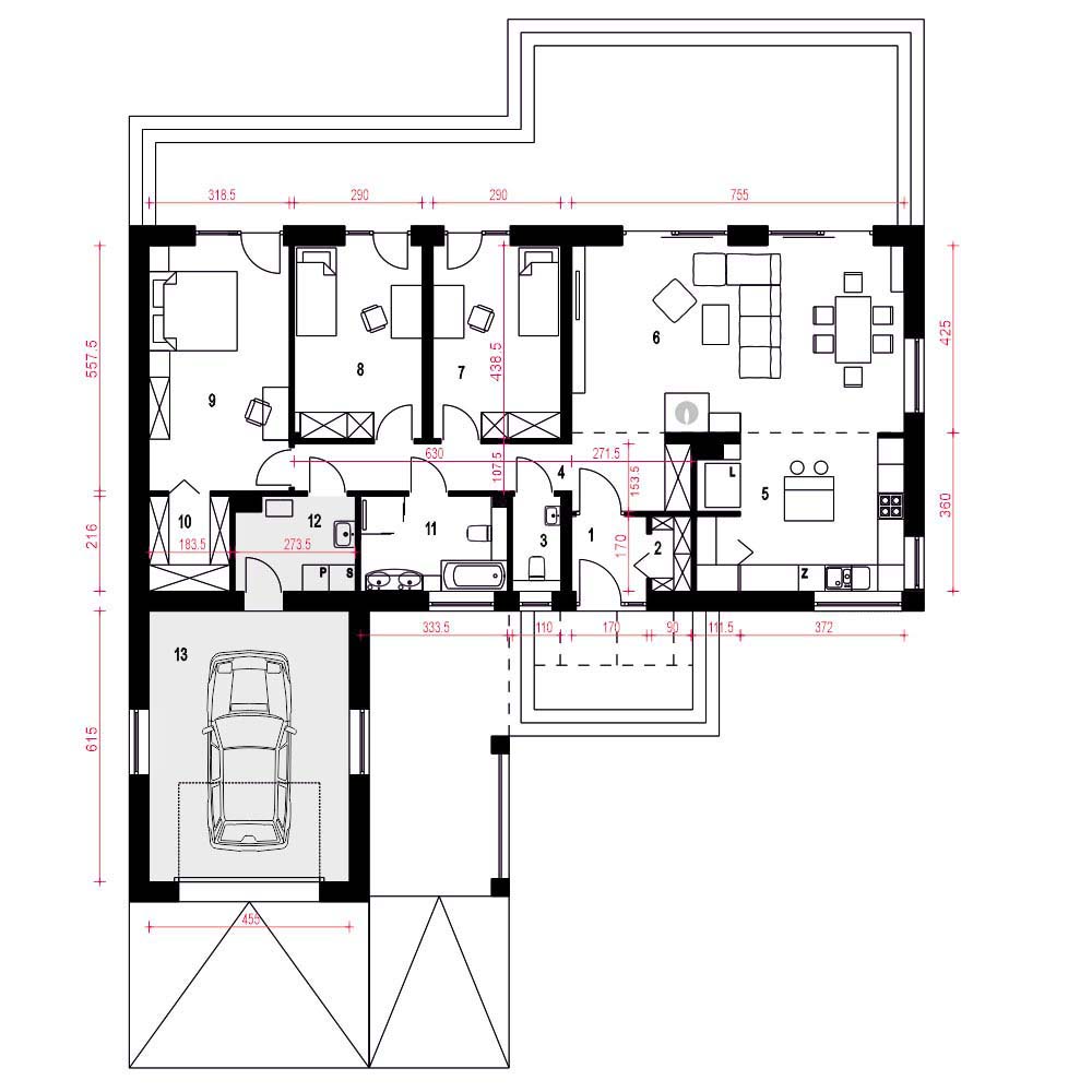
Złota II to nowoczesny, parterowy dom z wiatą i garażem dla 4 osobowej rodziny. Dom w tradycyjnej technologii z dachem z prefabrykowanych wiązarów. Strop stanowi dolny drewniany pas konstrukcji wiązarów dachowej. Istnieje możliwość wykonania klasycznej więźby dachowej i stropu gęstotożebrowego. Dach jest dwuspadowy o kącie nachylenia 35 stopni. Wspólna przestrzeń składa się z wysokiego salonu z kominkiem, kuchni ze spiżarnią oraz jadalni. W prywatnej strefie domu znajdują się dwie mniejsze sypialnie i duża sypialnia z garderobą. W strefie nocnej przewidziano łazienkę ogólną, niewielkie WC oraz pomieszczenie technicznym (pralnia , suszarnia) z piecem CO. Elewacja budynku utrzymana w kolorze białym z elementami drewna. Złota II to bardzo dobra inwestycją finansową.fundamenty: BETONOWE ściany zewnętrzne: POROTHERM+STYROPIAN TERMO ORGANIKA rodzaj stropu i konstrukcja dachu: wiązary prefabrykowane MITEK elewacje: TYNK STRUKTURALNY pokrycie dachu: BLACHA
