- Tylko online
Masz pytania? Chciałbyś negocjować cenę
Zadzwoń! 577 575 011
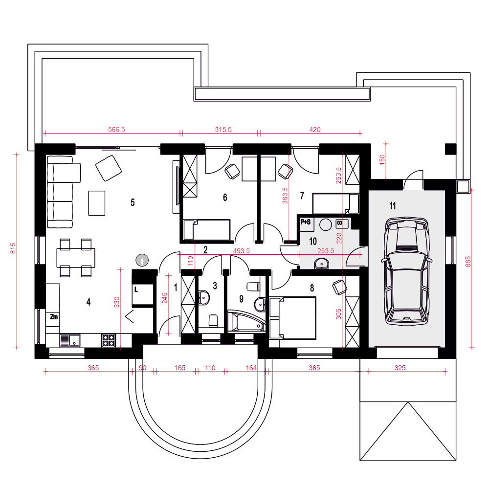
Jarzębina z garażem to mały, jednopiętrowy dom z prostym dwuspadowym dachem, który prezentuje się elegancko. Idealny dla czteroosobowej rodziny, zapewniający komfort i funkcjonalność. Główne wejście, chronione podcieniem, prowadzi do wiatrołapu z praktycznymi szafami, a stamtąd do salonu i korytarza. Salon, kuchnia i jadalnia tworzą otwartą przestrzeń z kominkiem i przeszklonymi drzwiami prowadzącymi do ogrodu. Kuchnia ma także niewielką spiżarnię, a stół jadalny stoi przy wysokim oknie. Strefa prywatna zawiera trzy sypialnie, WC, łazienkę i pomieszczenie techniczne z pralką i suszarką. Dostęp do ogrodu jest możliwy także bezpośrednio z tej strefy. Ten ekonomiczny i ekologiczny dom ma uniwersalny design, doskonale wpasowujący się zarówno w nowe osiedla, jak i istniejącą zabudowę.
