Informujemy, iż nasz sklep internetowy wykorzystuje technologię plików cookies a jednocześnie nie zbiera w sposób automatyczny żadnych informacji, z wyjątkiem informacji zawartych w tych plikach (tzw. „ciasteczkach”).

A-150

  • Tylko online

Dane techniczne

powierzchnia
115.4 m²
wysokość
10.62 m
kąt dachu
45 °
szerokość działki
20 m
Powierzchnia zabudowy
89.9
kondygnacje
piętrowe
konstrukcja
szkieletowe
zabudowa
domy wolnostojące
piwnica
z piwnicą
kubatura
751.8 m³
dostępne odbicie lustrzane
Nie
Pow. użytkowa
115.4 m²
długość działki
16 m

Opis projektu

Rzuty

rzut parteru
1 kuchnia 8.90 pokój dzienny 27.70 pokój 7.10 łazienka 4.00 sypialnia 9.50 hall 8.30 wiatrołap 5.10
rzut parteru
1 kotłownia 0.00 pom. rekreacyjne 0.00 pom. gospodarcze 0.00 pom. gospodarcze 0.00
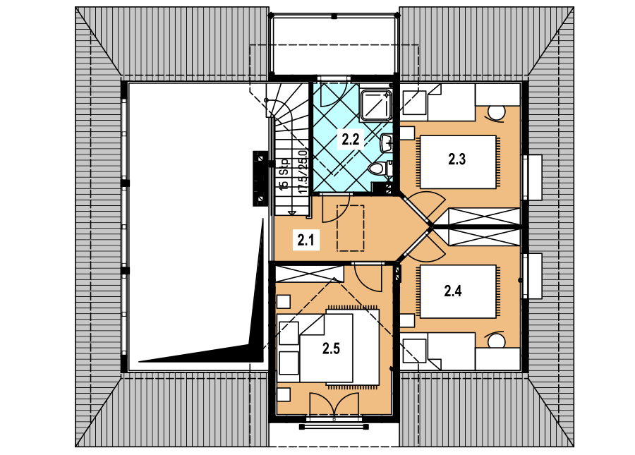
rzut parteru
1 sypialnia 12.10 sypialnia 9.50 sypialnia 9.30 łazienka 5.90 hall 8.00

O autorze projektu A-150

4 099 zł

Tylko u nas możesz negocjować cenę!
Skorzystaj z tej możliwości.

Lustrzane odbicie: niedostępne.

Masz dodatkowe pytania?
Zadzwoń lub zamów rozmowę.

Zamów rozmowę

Pomożemy Ci dopasować do twoich potrzeb mymarzony projekt, wpisz swój numer telefonu nasz konsultant oddzwoni.

Negocjuj cenę projektu A-150

Zapytaj pytanie o projekt A-150

Oceny i komentarze

Napisz swoją opinię