Informujemy, iż nasz sklep internetowy wykorzystuje technologię plików cookies a jednocześnie nie zbiera w sposób automatyczny żadnych informacji, z wyjątkiem informacji zawartych w tych plikach (tzw. „ciasteczkach”).

A-154

  • Tylko online

Dane techniczne

powierzchnia
113.6 m²
wysokość
7.88 m
kąt dachu
42 °
szerokość działki
18 m
Powierzchnia zabudowy
83.2
kondygnacje
piętrowe
konstrukcja
szkieletowe
zabudowa
domy wolnostojące
piwnica
z piwnicą
kubatura
671 m³
dostępne odbicie lustrzane
Nie
Pow. użytkowa
113.6 m²
długość działki
16.5 m

Opis projektu

Rzuty

rzut poddasza
1 sypialnia 8.20 hall 4.90 łazienka 8.00 sypialnia 13.90 sypialnia 13.90
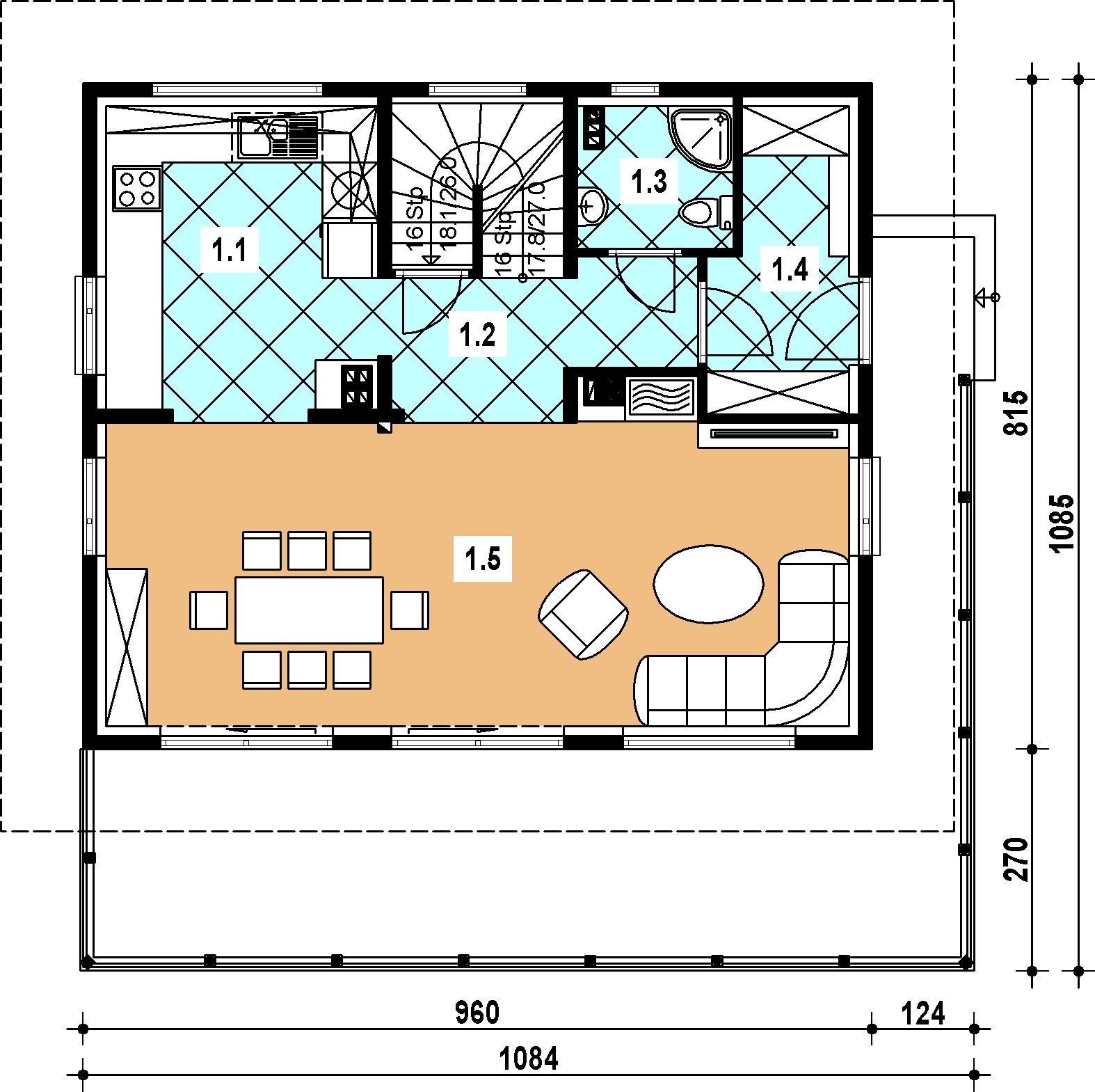
rzut parteru
1 kuchnia 12.50 hall 7.80 wc 3.20 wiatrołap 6.10 pokój dzienny 35.10
rzut piwnicy
1 aneks kuchenny 6.20 łazienka 4.80 hall 6.50 pom. gospod. 9.20 sypialnia 13.30 pokój dzienny 22.60

O autorze projektu A-154

4 299 zł

Tylko u nas możesz negocjować cenę!
Skorzystaj z tej możliwości.

Lustrzane odbicie: niedostępne.

Masz dodatkowe pytania?
Zadzwoń lub zamów rozmowę.

Zamów rozmowę

Pomożemy Ci dopasować do twoich potrzeb mymarzony projekt, wpisz swój numer telefonu nasz konsultant oddzwoni.

Negocjuj cenę projektu A-154

Zapytaj pytanie o projekt A-154

Oceny i komentarze

Napisz swoją opinię