- Tylko online
Masz pytania? Chciałbyś negocjować cenę
Zadzwoń! 577 575 011
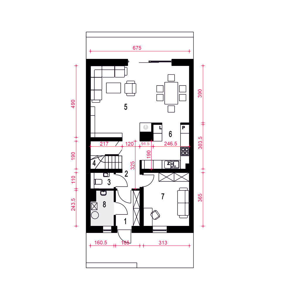
Projekt Aria II to klasyczny dom jednorodzinny z użytkowym poddaszem, idealny dla wąskich działek oraz zabudowy bliźniaczej lub szeregowej. Z przodu znajduje się wejście do budynku. Wewnątrz domu zaplanowano funkcjonalną strefę wspólną i pomocniczą. Salon z kominkiem, jadalnią i kuchnią otwiera się na taras. W strefie komunikacyjnej znajduje się praktyczna szafa wnękowa (wiatrołap), schowek pod schodami, wc, pomieszczenie techniczne oraz schody na poddasze. Na piętrze znajdują się trzy sypialnie i przestronna łazienka. Dom Aria charakteryzuje się proporcjonalnym, symetrycznym kształtem oraz klasyczną architekturą, co sprawia, że doskonale wkomponuje się w różne środowiska urbanistyczne. Jego oszczędna forma i niewielka powierzchnia użytkowa czynią go również ekonomicznym w eksploatacji i realizacji. Zewnętrzna elewacja wyróżnia się delikatnymi detalami i naturalną kolorystyką.
