- Tylko online
Masz pytania? Chciałbyś negocjować cenę
Zadzwoń! 577 575 011
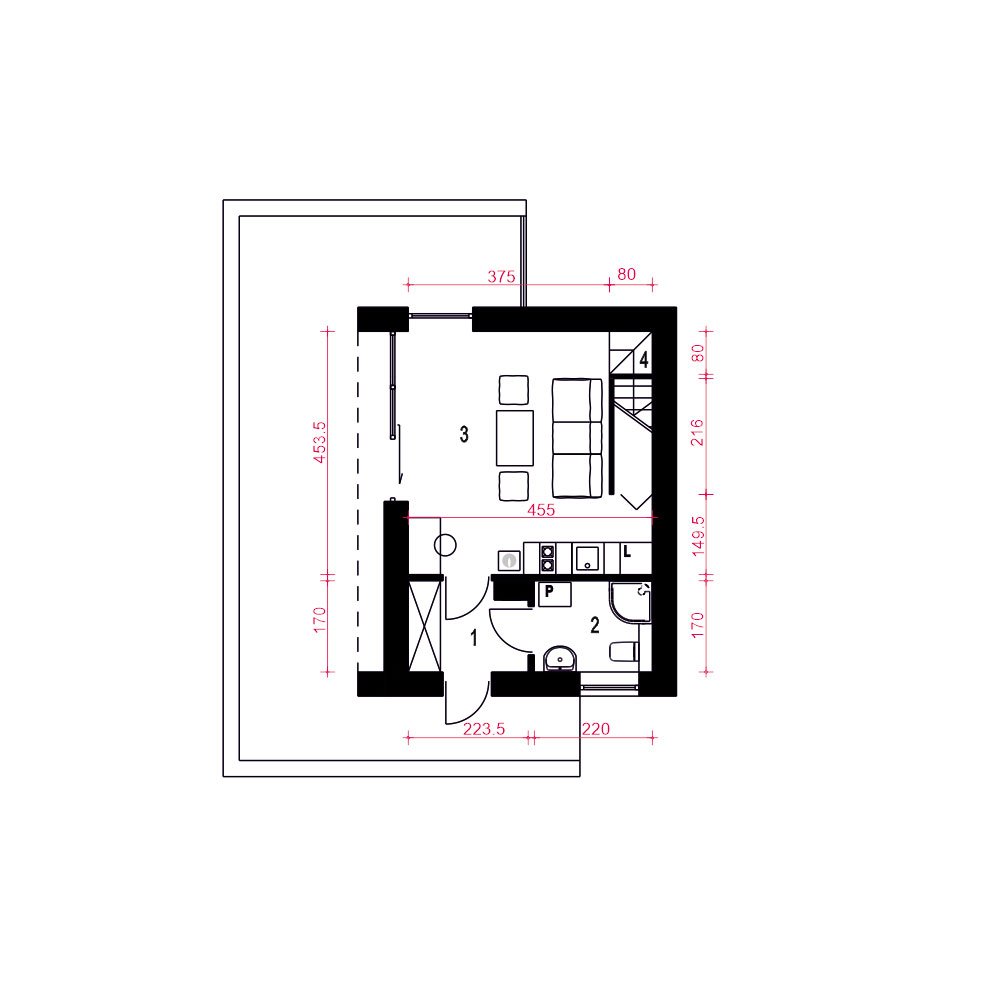
Kamyczek II -projekt niewielkiego domku z dwuspadowym dachem na rzucie prostokąta. Dom z elewacją drewnianą i kamienną. Jest to propozycja projektu do 70 m2 powierzchni zabudowy. Kamyczej II pasuje do naturalnego otoczenia. Zadaszone wejście prowadzi do wiatrołapu, w którym przewidziano szafę wnękową. Stąd można dostać się do łazienki z prysznicem. W strefie dziennej mamy niewielką kuchnię, miejsce na wypoczynek, biurko, schowek pod schodami i schody na poddasze oraz kominek. Ogrzewanie piecem gazowym i kominkiem. Z salonu wchodzi się schodami na poddasze. Kamyczek to propozycja ekonomicznego i ekologicznego domu, który doskonale sprawdzi się jako weekendowy lub dom całoroczny dla niewymagających użytkowników.fundamenty: BETONOWE ściany zewnętrzne: POROTHERM+STYROPIAN TERMO ORGANIKA ściany wewnętrzne: POROTHERM rodzaj stropu: TERIVA elewacje: TYNK STRUKTURALNY, CEGŁA KLINKIEROWA pokrycie dachu: BLACHA
