- Tylko online
Masz pytania? Chciałbyś negocjować cenę
Zadzwoń! 577 575 011
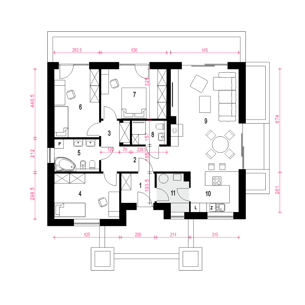
Klara VI to projekt nowoczesnego domu parterowego bez garażu. To projekt domu dla 4ro osobowej rodziny. Dom zaprojektowany jest w technologii murowanej z tradycyjną więźbą dachową, przekryty dachem wielospadowym. Klara VI to funkcjonalny projekt domu parterowego, łączący strefę ogólnodostępną i prywatną na jednym poziomie. Projekt jest kolejną wersją popularnego projektu Klara. W części wejściowej projekt przewiduje wygodny wiatrołap i hol z którego mamy zapewniony dostęp do małej łazienki. Z holu przechodzimy do obszernego salonu z jadalnią, następnie do kuchni z półwyspem. Kuchnia z układem mebli w kształcie litery "U", zapewnia odpowiednią przestrzeń do pracy, a duże frontowe okno doświetla idealnie przestrzeń roboczą. Przy kuchni mamy do dyspozycji spiżarnię która pełni też funkcję pomieszczenia technicznego z piecem CO. Do części prywatnej dostaniemy się przez korytarz dostępny z holu wejściowego. W korytarzu udało się wygospodarować schowek w formie zabudowanej szafy. W części prywatnej mamy do dyspozycji trzy pokoje sypialne i wygodną, wspólną łazienkę z wanną. Klara VI to atrakcyjna propozycja domu energooszczędnego, o nowoczesnym wyglądzie, to projekt domu z serii "eco" - ekonomiczny w budowie i w utrzymaniu - idealna propozycja dla rodzin planujących budowę pierwszego domu.fundamenty: BETONOWE ściany zewnętrzne: POROTHERM+STYROPIAN TERMO ORGANIKA rodzaj stropu: TERIVA I elewacje: TYNK STRUKTURALNY, OKŁADZINA DREWNIANA pokrycie dachu: DACHÓWKA CEM. lub CER.
