- Tylko online
Masz pytania? Chciałbyś negocjować cenę
Zadzwoń! 577 575 011
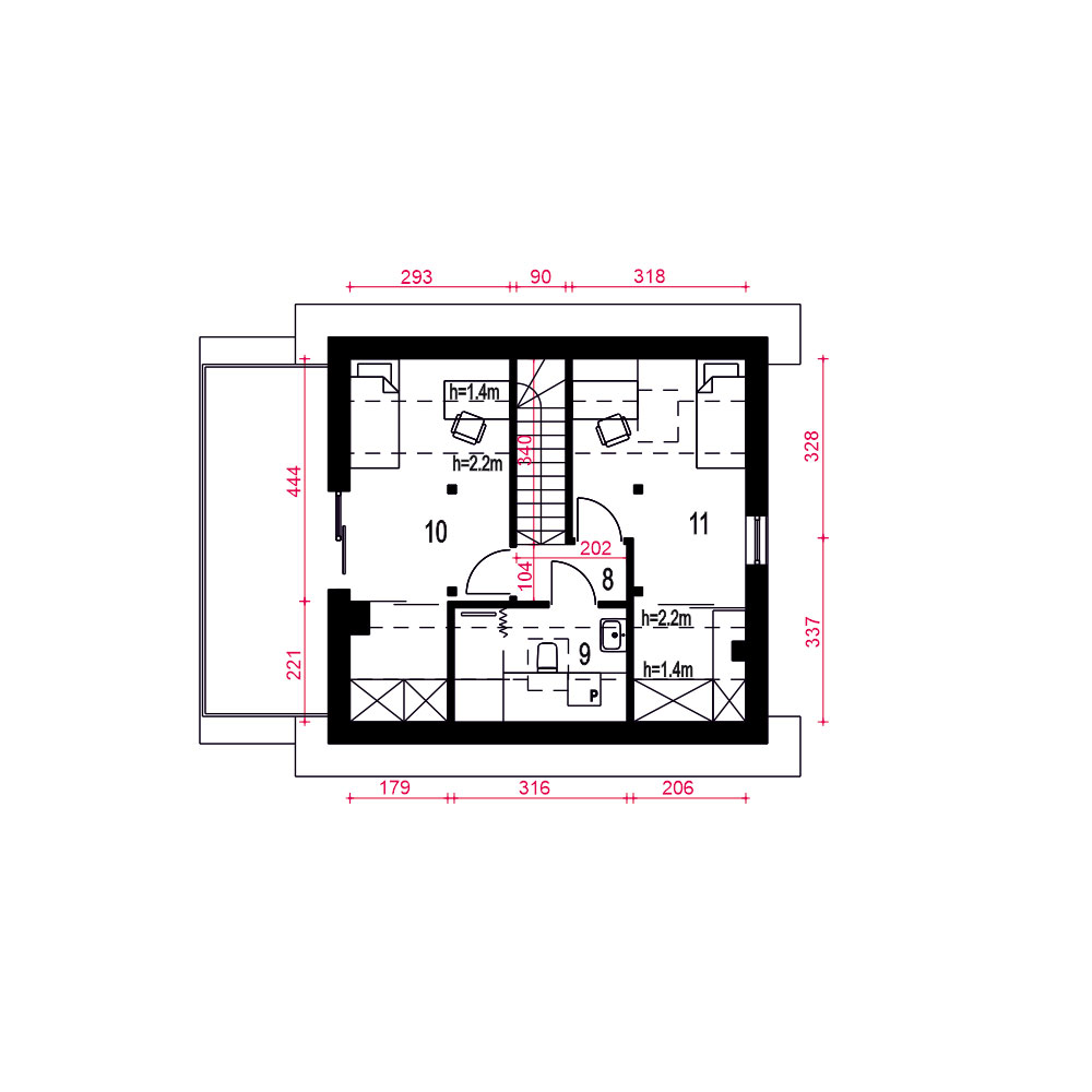
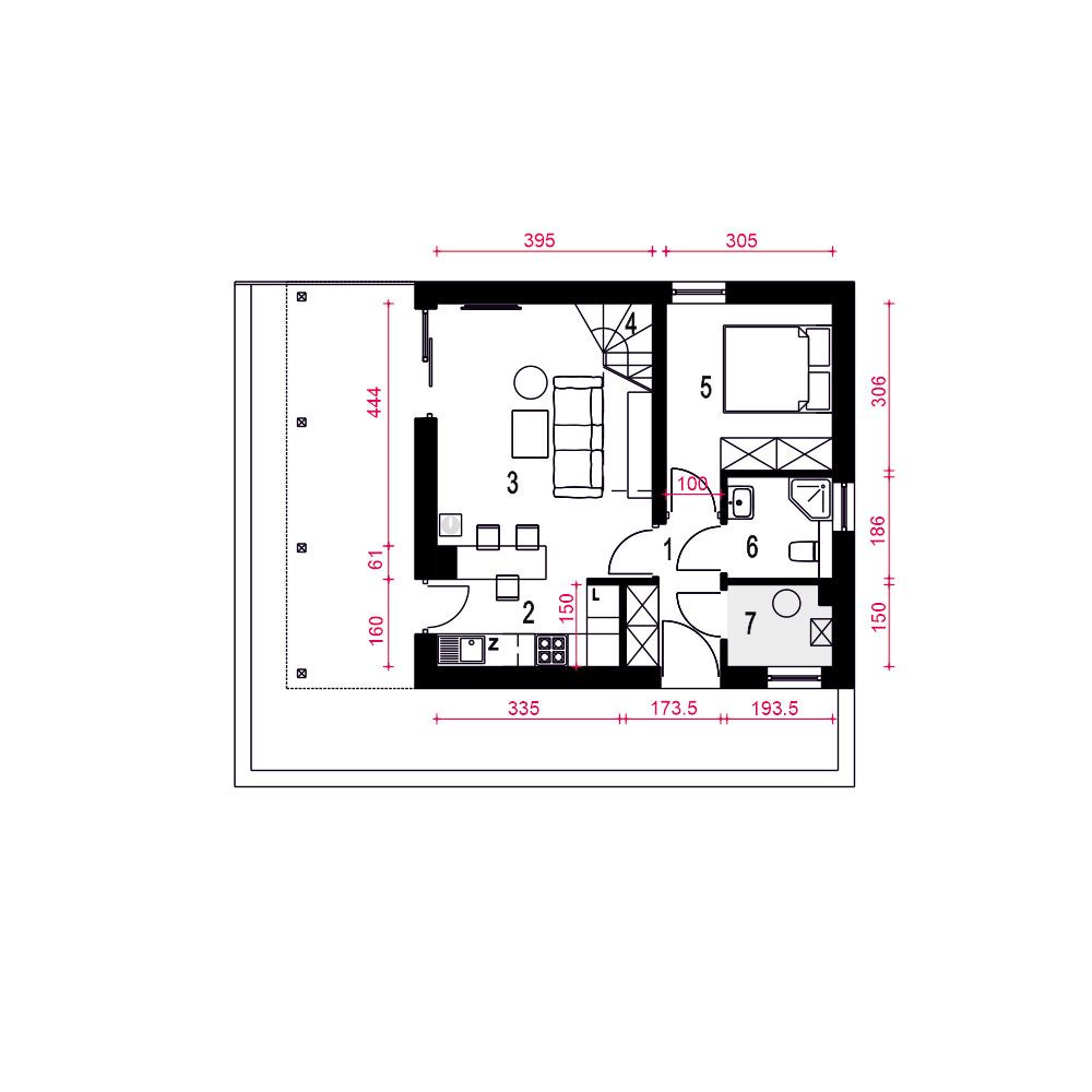
Projekt Czubajka to mały, klasyczny dom jednorodzinny z użytkowym poddaszem. Ekonomiczny i tani w budowie, mieści trzy pokoje i salon. Wejście prowadzi przez wiatrołap z szafą, obok znajduje się pomieszczenie na pompę ciepła. Salon z kuchnią tworzą przytulną, dobrze doświetloną przestrzeń wspólną. Na parterze jest też sypialnia i łazienka. Na poddaszu znajdują się dwie sypialnie z garderobami i łazienka. Z jednego pokoju jest wyjście na balkon, który zadasza taras. Dom ma klasyczną architekturę z białymi elewacjami, drewnem i jasnym klinkierem, i nadaje się do całorocznego użytku.fundamenty: BETONOWE ściany zewnętrzne: POROTHERM+STYROPIAN TERMO ORGANIKA rodzaj stropu: TERIVA I elewacje: TYNK STRUKTURALNY pokrycie dachu: DACHÓWKA CEM. lub CER.
