- Tylko online
Masz pytania? Chciałbyś negocjować cenę
Zadzwoń! 577 575 011
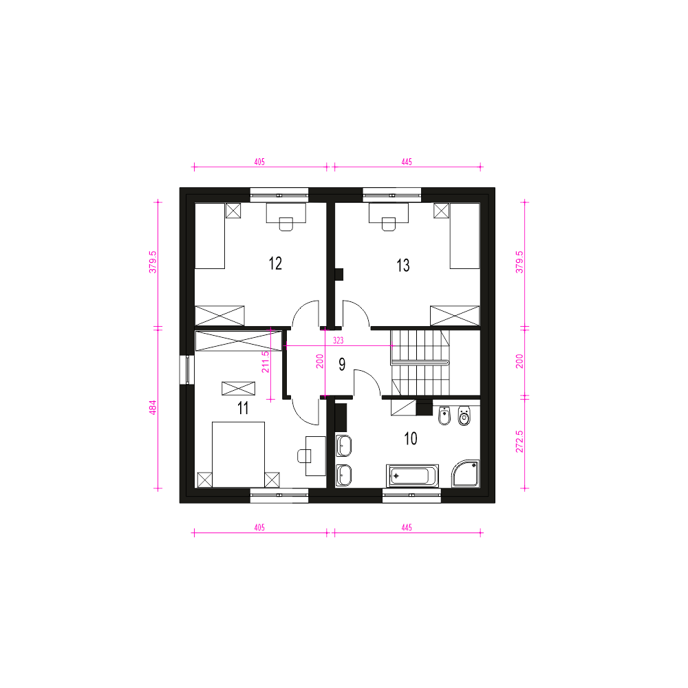
Tadeusz IV - dom piętrowy z 4 sypialniami.fundamenty: BETONOWE ściany zewnętrzne: POROTHERM+STYROPIAN TERMO ORGANIKA ściany wewnętrzne: POROTHERM rodzaj stropu nad parterem: TERIVA rodzaj stropu i konstrukcja dachu nad piętrem: wiązary prefabrykowane MITEK elewacje: TYNK STRUKTURALNY, CEGŁA KLINKIEROWA pokrycie dachu: DACHÓWKA CERAMICZNA
