- Tylko online
Masz pytania? Chciałbyś negocjować cenę
Zadzwoń! 577 575 011
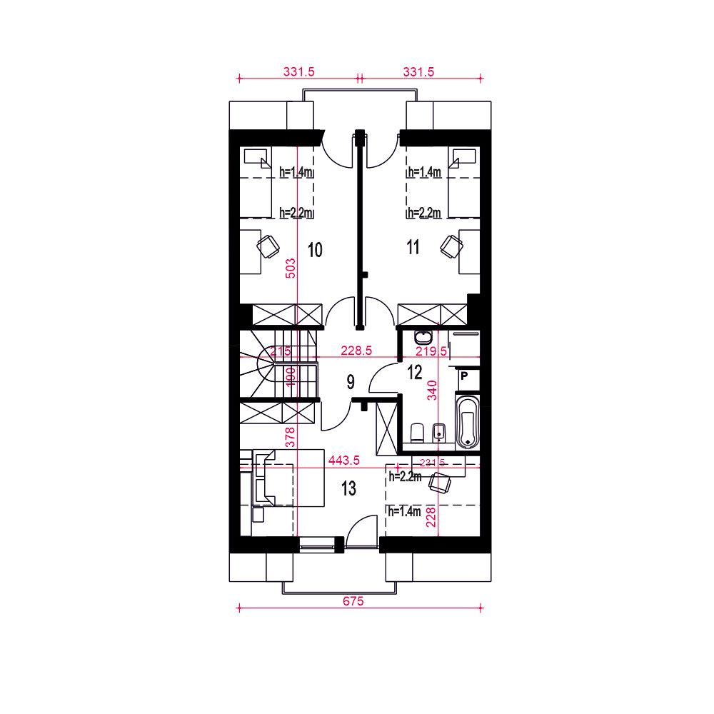
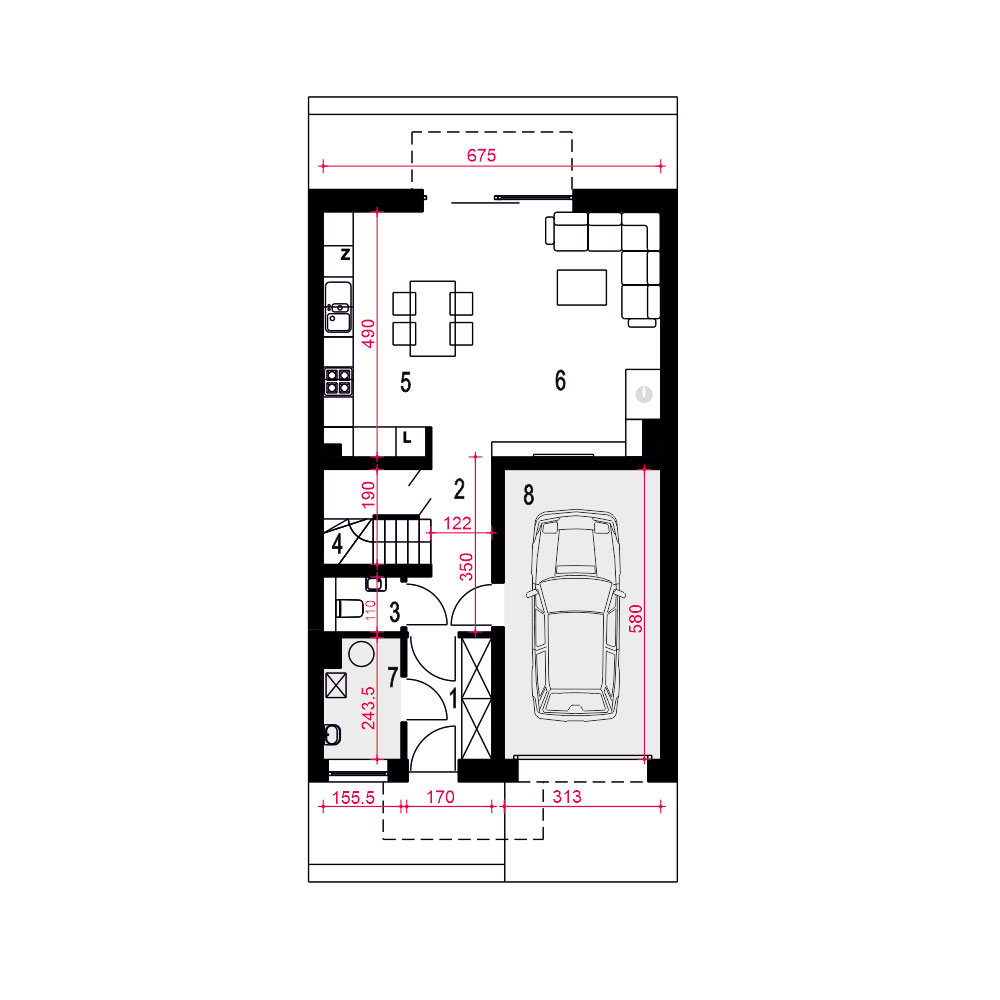
Poniższy opis odnosi się do jednego segmentu: Dom Aida to tradycyjny, dwukondygnacyjny dom jednorodzinny z użytkowym poddaszem, idealny dla wąskich działek, zabudowy bliźniaczej lub szeregowej. Zaprojektowany na rzucie prostokąta. Salon z jadalnią, kuchnią i kominkiem otwiera się na taras, tworząc przyjemne miejsce spotkań. W strefie komunikacyjnej znajdziemy praktyczną szafę wnękową (wiatrołap), schowek pod schodami, WC, pomieszczenie techniczne, garaż oraz schody na poddasze w centralnej części budynku.Na poddaszu znajdują się trzy sypialnie i obszerna łazienka, z wyjściami na balkony. Dom Aida wyróżnia się proporcjonalnym, symetrycznym kształtem, a pionowe okna balkonowe zapewniają doskonałe naturalne oświetlenie. Polecany dla różnych osiedli dzięki klasycznemu charakterowi architektury, doskonale sprawdzi się w różnych środowiskach miejskich. Dzięki oszczędnej formie i niewielkiej powierzchni użytkowej jest ekonomiczny zarówno w eksploatacji, jak i realizacji. Zewnętrzna elewacja wyróżnia się delikatnym detalem i naturalną kolorystyką, tworząc harmonijny obraz domu Aida.
