- Tylko online
Masz pytania? Chciałbyś negocjować cenę
Zadzwoń! 577 575 011
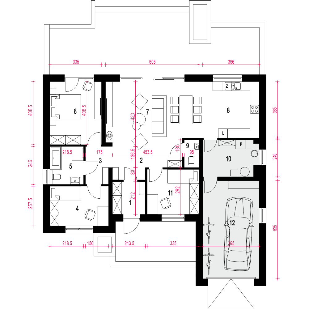
Bratek V to projekt parterowego domu jednorodzinnego z wbudowanym garażem. To projekt domu o prostej konstrukcji przekryty dwuspadowym dachem z wiązarów prefabrykowanych. Bratek V to dom ekonomiczny w budowie i utrzymaniu. Na funkcję domu składa się w części ogólnodostępnej: wiatrołap, centralnie umieszczony przestronny salon z jadalnią, kuchnia od strony ogrodu. W pozostałej części zaprojektowano trzy pokoje sypialne, wygodną łazienkę, obszerna pralnię z kotłownią i funkcją spiżarni oraz wygodny garaż jednostanowiskowy. Konstrukcja dachu z prefabrykowanych wiązarów umożliwia wykorzystanie strychu jako przestrzeń magazynowej. Projekt domu Bratek V to ekonomiczna propozycja domu energooszczędnego o powierzchni około 100 m2, idealna na pierwszy dom dla rodziny 3-4ro osobowej.fundamenty: BETONOWE ściany zewnętrzne:: POROTHERM+STYROPIAN ściany wewnętrzne:: POROTHERM rodzaj stropu i konstrukcja dachu:: wiązary prefabrykowane MITEK elewacje: TYNK STRUKTURALNY, OKŁADZINA DREWNIANA pokrycie dachu: DACHÓWKA CEMENTOWA LUB CERAMICZNA
