- Tylko online
Masz pytania? Chciałbyś negocjować cenę
Zadzwoń! 577 575 011
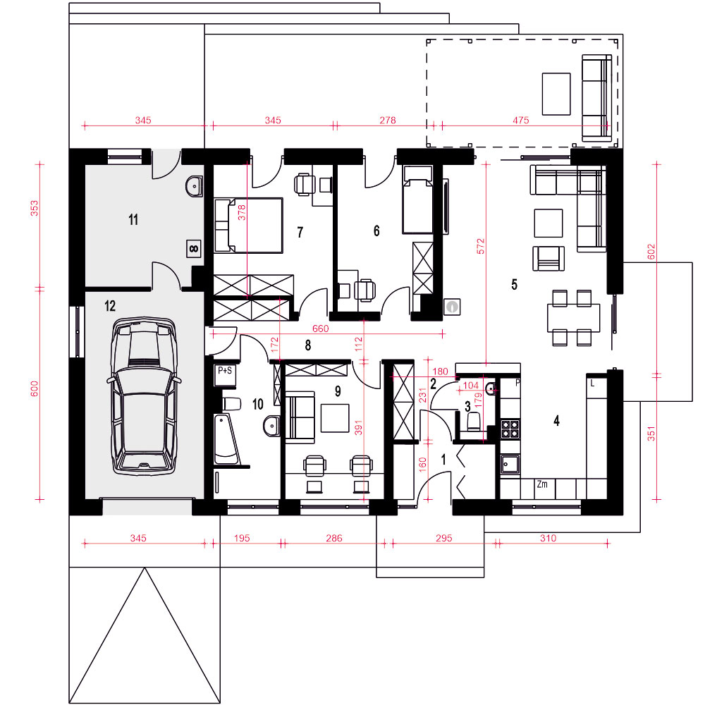
Majka II to projekt wygodnego domu jednorodzinnego z dachem dwuspadowym. Charakteryzuje się estetycznym wyglądem i komfortowymi warunkami dla czteroosobowej rodziny. Jego wszechstronny design sprawia, że pasuje zarówno do nowych osiedli, jak i istniejącej zabudowy. Główne wejście prowadzi do wiatrołapu z szafami i WC, dalej do holu i strefy dziennej z salonem, kuchnią i jadalnią. Te pomieszczenia tworzą jedną przestrzeń z kominkiem i wyjściami na taras. Strefa prywatna obejmuje trzy sypialnie i łazienkę. Korytarz prowadzi do garażu i części technicznej budynku z szafą wnękową. Na poddaszu znajdują się przestrzeń nieużtkowa (strych). Projekt ten oferuje ekonomiczny i ekologiczny dom, łatwy w budowie i eksploatacji, z uniwersalną architekturą.fundamenty: BETONOWE ściany zewnętrzne:: POROTHERM+STYROPIAN ściany wewnętrzne:: POROTHERM rodzaj stropu i konstrukcja dachu:: wiązary prefabrykowane MITEK elewacje: TYNK STRUKTURALNY, OKŁADZINA DREWNIANA, CERAMICZNA pokrycie dachu: DACHÓWKA CEMENTOWA LUB CERAMICZNA
