- Tylko online
Masz pytania? Chciałbyś negocjować cenę
Zadzwoń! 577 575 011
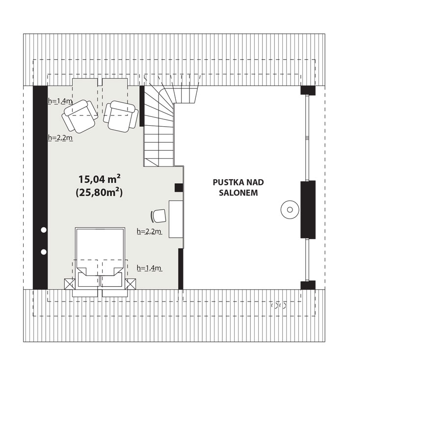
Erna 3 to niewielki dom jednorodzinny lub letniskowy. Posiada sypialnię na parterze oraz otwartą część dzienną z antresolą na której jest dodatkowa przestrzeń do dowolnej aranżacji. Dzięki powierzchni zabudowy 69,5 m2, może być budowany na zgłoszenie. Dom posiada duże przeszklenie w ścianie szczytowej a wejście jest przez zadaszony taras z boku domu co pozwala sytuować dom również na działkach z wejściem od południa. Standardowo dom wyposażony jest w pompę ciepła oraz kominek.
