- Tylko online
Masz pytania? Chciałbyś negocjować cenę
Zadzwoń! 577 575 011
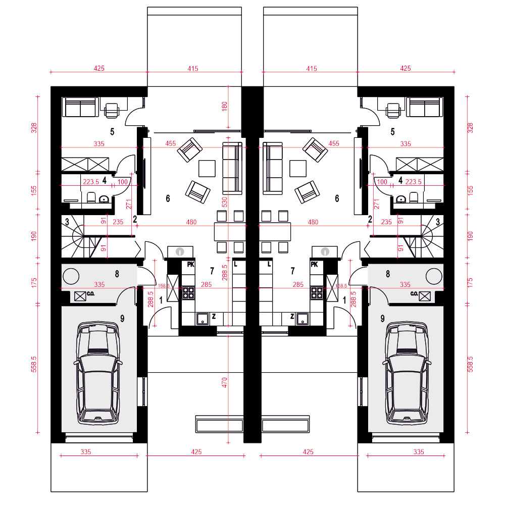
Poniższy opis odnosi się do jednego segmentu: Talia to nowoczesny, funkcjonalny dom rodzinny, dostępny jako wolnostojący lub w zabudowie bliźniaczej. Jego kompaktowa forma pozwala na posadowienie na wąskich działkach, co czyni go atrakcyjnym dla deweloperów. Parter obejmuje wiatrołap z wejściem do pomieszczenia gospodarczego i garażu, garderobę pod schodami, małą łazienkę, pokój oraz przestronną strefę dzienną z kuchnią, jadalnią i salonem. Garaż łączy się z częścią mieszkalną przez pomieszczenie techniczne. Na piętrze znajdują się trzy sypialnie, duża łazienka oraz wnęki na pralkę i suszarkę. Każda sypialnia ma dostęp do balkonu. Zielone tarasy nad garażem i pokojem na parterze podkreślają nowoczesny, ekologiczny charakter domu, który doskonale wpisuje się w estetykę współczesnych osiedli.
