- Tylko online
Masz pytania? Chciałbyś negocjować cenę
Zadzwoń! 577 575 011
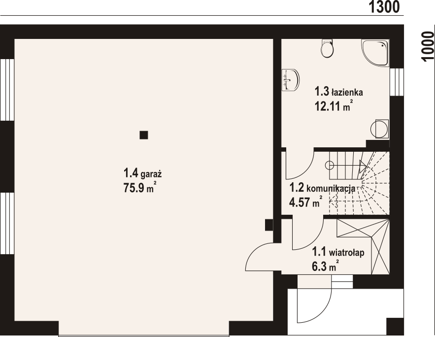
Budynek mieszkalny. Na parterze garaż na dwa samochody, łazienka, komunikacja, wiatrołap. Na poddaszu salon z aneksem kuchennym, pokój, łazienka. Zwarta bryła budynku oraz dach dwuspadowy sprzyjają szybkiej i taniej budowie oraz niskim kosztom eksploatacji.
