- Tylko online
Masz pytania? Chciałbyś negocjować cenę
Zadzwoń! 577 575 011
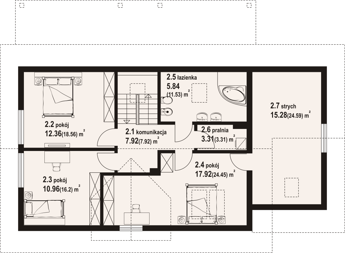
Dom z bali. Na parterze salon z aneksem kuchennym oraz wyjściem na duży, zadaszony taras. Pokój, łazienka, wiatrołap, spiżarka, pomieszczenie gospodarcze. Na poddaszu trzy pokoje, łazienka, komunikacja, pralnia oraz strych. Zwarta bryła budynku oraz dach dwuspadowy sprzyjają szybkiej i taniej budowie oraz niskim kosztom eksploatacji.
