Informujemy, iż nasz sklep internetowy wykorzystuje technologię plików cookies a jednocześnie nie zbiera w sposób automatyczny żadnych informacji, z wyjątkiem informacji zawartych w tych plikach (tzw. „ciasteczkach”).

E-275

  • Tylko online

Dane techniczne

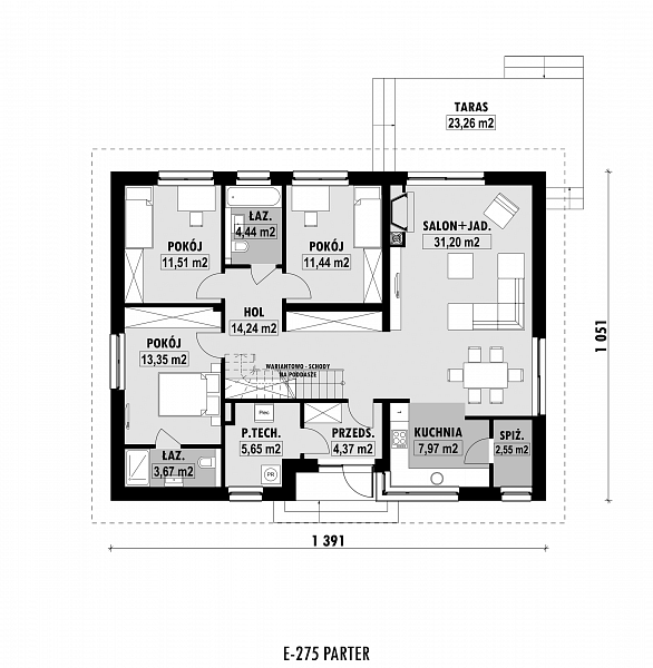
powierzchnia
104.74 m²
wysokość
7.77 m
kąt dachu
35 °
szerokość działki
21.91 m
Liczba pokoi
3
Powierzchnia zabudowy
146.19
kondygnacje
parterowe
garaż
bez garażu
dach
dach dwuspadowy
piwnica
bez piwnicy
kubatura
324.55 m³
dostępne odbicie lustrzane
Nie
Pow. użytkowa
104.74 m²
długość działki
19.51 m
Powierzchnia dachu
215 m²

Opis projektu

Rzuty

Rzut 1
Rzut 2

Elewacje

Sytuacja

O autorze projektu E-275

5 090 zł

Tylko u nas możesz negocjować cenę!
Skorzystaj z tej możliwości.

Lustrzane odbicie: niedostępne.

Masz dodatkowe pytania?
Zadzwoń lub zamów rozmowę.

Zamów rozmowę

Pomożemy Ci dopasować do twoich potrzeb mymarzony projekt, wpisz swój numer telefonu nasz konsultant oddzwoni.

Negocjuj cenę projektu E-275

Zapytaj pytanie o projekt E-275

Oceny i komentarze

Napisz swoją opinię