Informujemy, iż nasz sklep internetowy wykorzystuje technologię plików cookies a jednocześnie nie zbiera w sposób automatyczny żadnych informacji, z wyjątkiem informacji zawartych w tych plikach (tzw. „ciasteczkach”).

E-185a

  • Tylko online

Dane techniczne

powierzchnia
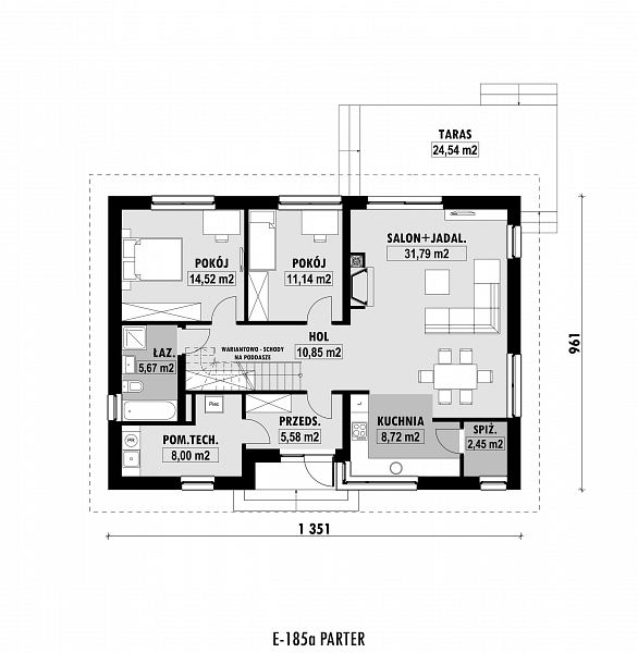
90.72 m²
wysokość
7.46 m
kąt dachu
35 °
szerokość działki
21.51 m
Liczba pokoi
2
Powierzchnia zabudowy
129.83
kondygnacje
parterowe
garaż
bez garażu
dach
dach dwuspadowy
piwnica
bez piwnicy
kubatura
290.24 m³
dostępne odbicie lustrzane
Nie
Pow. użytkowa
90.72 m²
długość działki
18.61 m
Powierzchnia dachu
192 m²

Opis projektu

Rzuty

Rzut 1
Rzut 2

Elewacje

Sytuacja

O autorze projektu E-185a

4 990 zł

Tylko u nas możesz negocjować cenę!
Skorzystaj z tej możliwości.

Lustrzane odbicie: niedostępne.

Masz dodatkowe pytania?
Zadzwoń lub zamów rozmowę.

Zamów rozmowę

Pomożemy Ci dopasować do twoich potrzeb mymarzony projekt, wpisz swój numer telefonu nasz konsultant oddzwoni.

Negocjuj cenę projektu E-185a

Zapytaj pytanie o projekt E-185a

Oceny i komentarze

Napisz swoją opinię