Informujemy, iż nasz sklep internetowy wykorzystuje technologię plików cookies a jednocześnie nie zbiera w sposób automatyczny żadnych informacji, z wyjątkiem informacji zawartych w tych plikach (tzw. „ciasteczkach”).

E-226a

  • Tylko online

Dane techniczne

powierzchnia
132.21 m²
wysokość
8.12 m
kąt dachu
37 °
szerokość działki
22.21 m
Liczba pokoi
5
Powierzchnia zabudowy
149.05
kondygnacje
parterowe
garaż
z garażem 2 st.
dach
dach czterospadowy
piwnica
bez piwnicy
kubatura
537.54 m³
dostępne odbicie lustrzane
Nie
Pow. użytkowa
132.21 m²
długość działki
20.86 m
Powierzchnia dachu
235 m²

Opis projektu

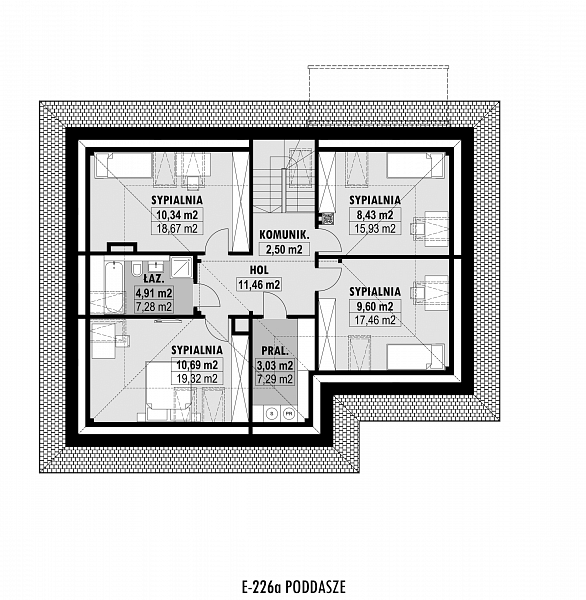
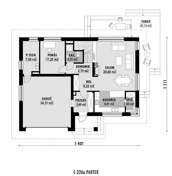
Rzuty

Rzut 1
Rzut 2

Elewacje

Sytuacja

O autorze projektu E-226a

5 990 zł

Tylko u nas możesz negocjować cenę!
Skorzystaj z tej możliwości.

Lustrzane odbicie: niedostępne.

Masz dodatkowe pytania?
Zadzwoń lub zamów rozmowę.

Zamów rozmowę

Pomożemy Ci dopasować do twoich potrzeb mymarzony projekt, wpisz swój numer telefonu nasz konsultant oddzwoni.

Negocjuj cenę projektu E-226a

Zapytaj pytanie o projekt E-226a

Oceny i komentarze

Napisz swoją opinię