Informujemy, iż nasz sklep internetowy wykorzystuje technologię plików cookies a jednocześnie nie zbiera w sposób automatyczny żadnych informacji, z wyjątkiem informacji zawartych w tych plikach (tzw. „ciasteczkach”).

E-273

  • Tylko online

Dane techniczne

powierzchnia
120.87 m²
wysokość
8.32 m
kąt dachu
40 °
szerokość działki
19.11 m
Liczba pokoi
3
Powierzchnia zabudowy
106.77
kondygnacje
parterowe
garaż
bez garażu
dach
dach dwuspadowy
piwnica
bez piwnicy
kubatura
389.12 m³
dostępne odbicie lustrzane
Nie
Pow. użytkowa
120.87 m²
długość działki
18.61 m
Powierzchnia dachu
173 m²

Opis projektu

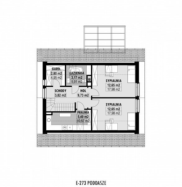
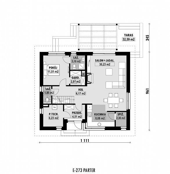
Rzuty

Rzut 1
Rzut 2

Elewacje

Sytuacja

O autorze projektu E-273

5 190 zł

Tylko u nas możesz negocjować cenę!
Skorzystaj z tej możliwości.

Lustrzane odbicie: niedostępne.

Masz dodatkowe pytania?
Zadzwoń lub zamów rozmowę.

Zamów rozmowę

Pomożemy Ci dopasować do twoich potrzeb mymarzony projekt, wpisz swój numer telefonu nasz konsultant oddzwoni.

Negocjuj cenę projektu E-273

Zapytaj pytanie o projekt E-273

Oceny i komentarze

Napisz swoją opinię