Informujemy, iż nasz sklep internetowy wykorzystuje technologię plików cookies a jednocześnie nie zbiera w sposób automatyczny żadnych informacji, z wyjątkiem informacji zawartych w tych plikach (tzw. „ciasteczkach”).

E-286

  • Tylko online

Dane techniczne

powierzchnia
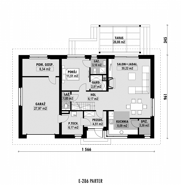
128.11 m²
wysokość
8.32 m
kąt dachu
40 °
szerokość działki
23.66 m
Liczba pokoi
4
Powierzchnia zabudowy
150.49
kondygnacje
parterowe
garaż
z garażem 1 st.
dach
dach czterospadowy
piwnica
bez piwnicy
kubatura
536.4 m³
dostępne odbicie lustrzane
Nie
Pow. użytkowa
128.11 m²
długość działki
18.61 m
Powierzchnia dachu
235 m²

Opis projektu

Rzuty

Rzut 1
Rzut 2

Elewacje

Sytuacja

O autorze projektu E-286

5 490 zł

Tylko u nas możesz negocjować cenę!
Skorzystaj z tej możliwości.

Lustrzane odbicie: niedostępne.

Masz dodatkowe pytania?
Zadzwoń lub zamów rozmowę.

Zamów rozmowę

Pomożemy Ci dopasować do twoich potrzeb mymarzony projekt, wpisz swój numer telefonu nasz konsultant oddzwoni.

Negocjuj cenę projektu E-286

Zapytaj pytanie o projekt E-286

Oceny i komentarze

Napisz swoją opinię