Informujemy, iż nasz sklep internetowy wykorzystuje technologię plików cookies a jednocześnie nie zbiera w sposób automatyczny żadnych informacji, z wyjątkiem informacji zawartych w tych plikach (tzw. „ciasteczkach”).

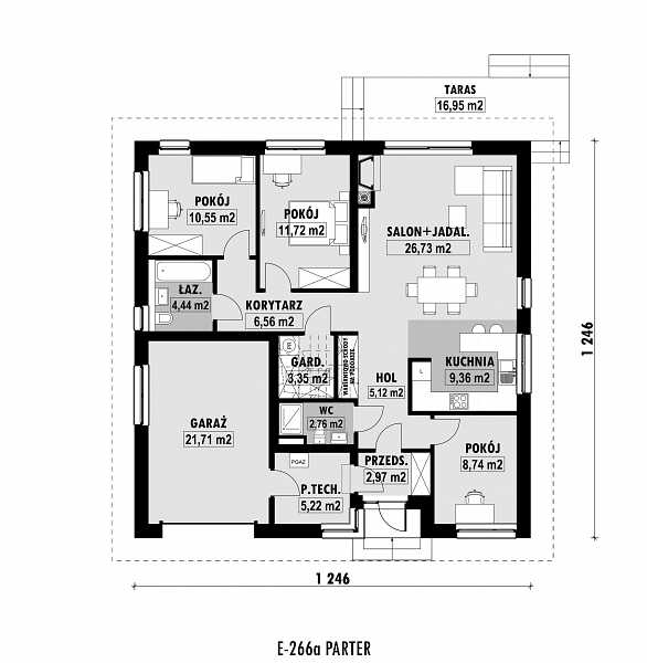
E-266a

  • Tylko online

Dane techniczne

powierzchnia
92.3 m²
wysokość
8.03 m
kąt dachu
32 °
szerokość działki
20.46 m
Liczba pokoi
3
Powierzchnia zabudowy
155.25
kondygnacje
parterowe
garaż
z garażem 1 st.
dach
dach czterospadowy
piwnica
bez piwnicy
kubatura
353.54 m³
dostępne odbicie lustrzane
Nie
Pow. użytkowa
92.3 m²
długość działki
21.46 m
Powierzchnia dachu
222 m²

Opis projektu

Rzuty

Rzut 1
Rzut 2

Elewacje

Sytuacja

O autorze projektu E-266a

4 990 zł

Tylko u nas możesz negocjować cenę!
Skorzystaj z tej możliwości.

Lustrzane odbicie: niedostępne.

Masz dodatkowe pytania?
Zadzwoń lub zamów rozmowę.

Zamów rozmowę

Pomożemy Ci dopasować do twoich potrzeb mymarzony projekt, wpisz swój numer telefonu nasz konsultant oddzwoni.

Negocjuj cenę projektu E-266a

Zapytaj pytanie o projekt E-266a

Oceny i komentarze

Napisz swoją opinię