Informujemy, iż nasz sklep internetowy wykorzystuje technologię plików cookies a jednocześnie nie zbiera w sposób automatyczny żadnych informacji, z wyjątkiem informacji zawartych w tych plikach (tzw. „ciasteczkach”).

E-282

  • Tylko online

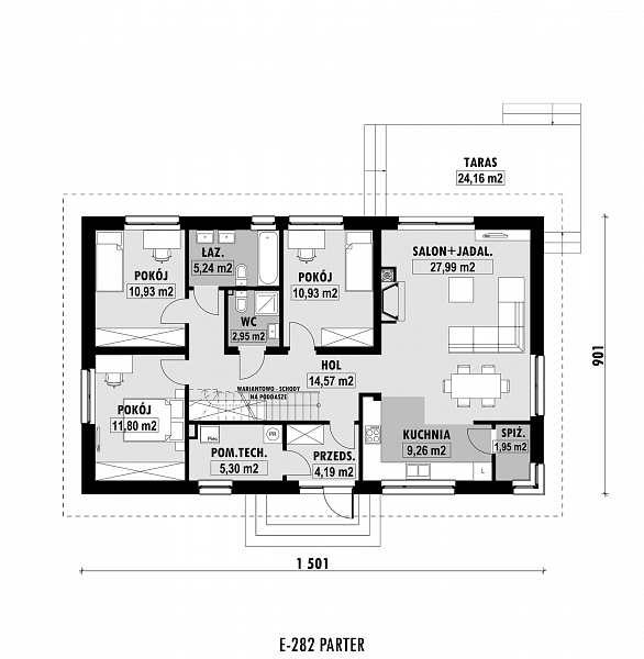
Dane techniczne

powierzchnia
99.81 m²
wysokość
7.27 m
kąt dachu
35 °
szerokość działki
23.01 m
Liczba pokoi
3
Powierzchnia zabudowy
135.24
kondygnacje
parterowe
garaż
bez garażu
dach
dach dwuspadowy
piwnica
bez piwnicy
kubatura
309.02 m³
dostępne odbicie lustrzane
Nie
Pow. użytkowa
99.81 m²
długość działki
18.01 m
Powierzchnia dachu
202 m²

Opis projektu

Rzuty

Rzut 1
Rzut 2

Elewacje

Sytuacja

O autorze projektu E-282

4 890 zł

Tylko u nas możesz negocjować cenę!
Skorzystaj z tej możliwości.

Lustrzane odbicie: niedostępne.

Masz dodatkowe pytania?
Zadzwoń lub zamów rozmowę.

Zamów rozmowę

Pomożemy Ci dopasować do twoich potrzeb mymarzony projekt, wpisz swój numer telefonu nasz konsultant oddzwoni.

Negocjuj cenę projektu E-282

Zapytaj pytanie o projekt E-282

Oceny i komentarze

Napisz swoją opinię