Informujemy, iż nasz sklep internetowy wykorzystuje technologię plików cookies a jednocześnie nie zbiera w sposób automatyczny żadnych informacji, z wyjątkiem informacji zawartych w tych plikach (tzw. „ciasteczkach”).

E-72 D

  • Tylko online

Dane techniczne

powierzchnia
96.04 m²
wysokość
8.65 m
kąt dachu
45 °
szerokość działki
17.88 m
Liczba pokoi
4
Powierzchnia zabudowy
69.95
kondygnacje
parterowe
garaż
bez garażu
dach
dach dwuspadowy
piwnica
bez piwnicy
dostępne odbicie lustrzane
Nie
Pow. użytkowa
96.04 m²
długość działki
16.08 m
Powierzchnia dachu
96 m²

Opis projektu

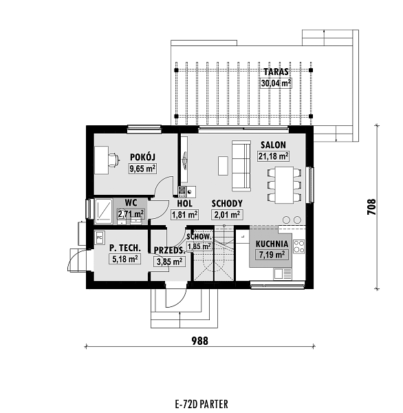
Rzuty

Rzut 1
Rzut 2

Elewacje

Sytuacja

O autorze projektu E-72 D

4 690 zł

Tylko u nas możesz negocjować cenę!
Skorzystaj z tej możliwości.

Lustrzane odbicie: niedostępne.

Masz dodatkowe pytania?
Zadzwoń lub zamów rozmowę.

Zamów rozmowę

Pomożemy Ci dopasować do twoich potrzeb mymarzony projekt, wpisz swój numer telefonu nasz konsultant oddzwoni.

Negocjuj cenę projektu E-72 D

Zapytaj pytanie o projekt E-72 D

Oceny i komentarze

Napisz swoją opinię