- Tylko online
Masz pytania? Chciałbyś negocjować cenę
Zadzwoń! 577 575 011
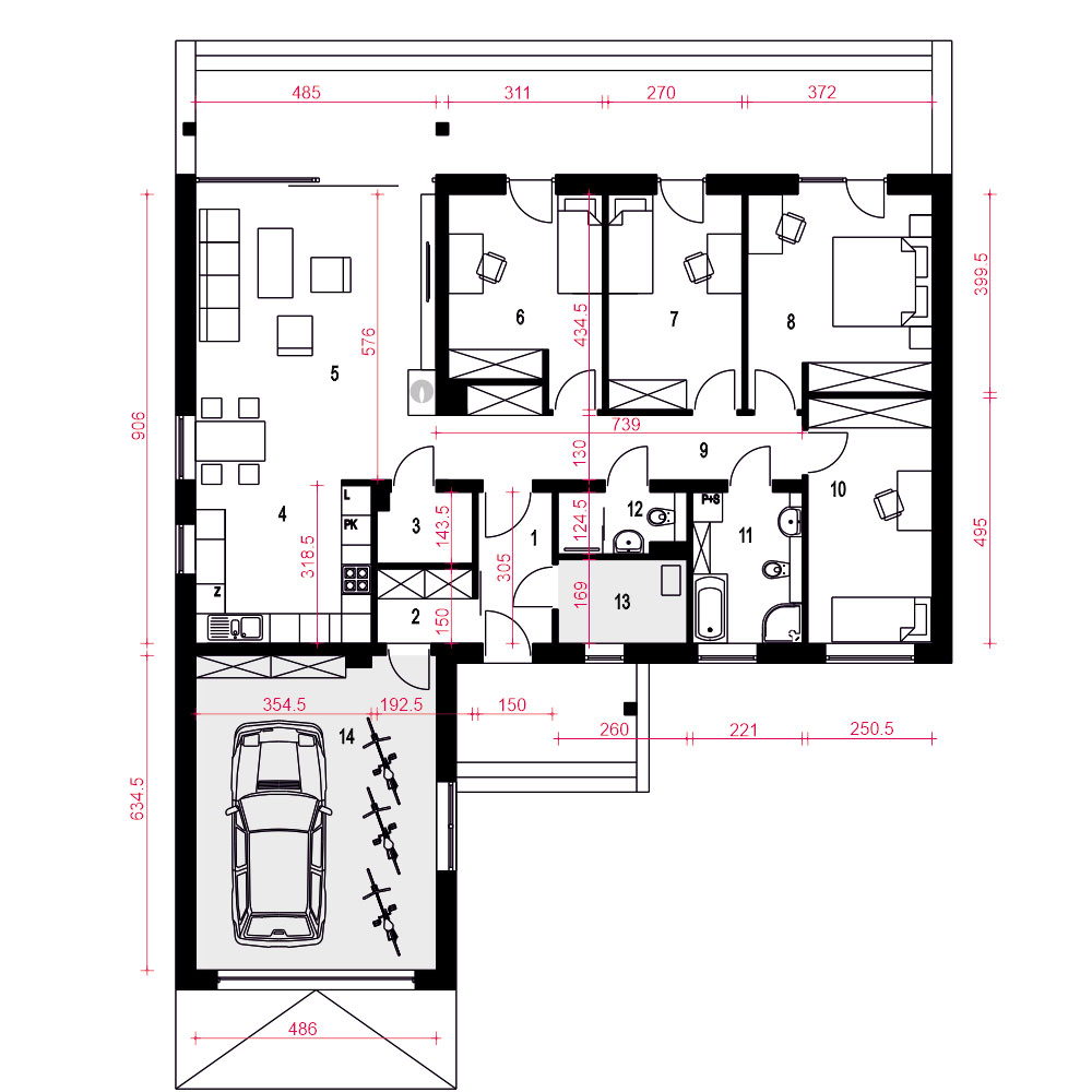
Projekt domu Gąska III z garażem to praktyczna i estetyczna propozycja dla 4–5-osobowej rodziny, która szuka wygodnego i ekonomicznego miejsca do życia. Budynek zaprojektowano z myślą o optymalnym wykorzystaniu przestrzeni przy jednoczesnym zachowaniu nowoczesnego wyglądu. W domu zaplanowano cztery sypialnie, które zapewniają prywatność wszystkim domownikom, a przestronny salon z dużymi oknami łączy się z kuchnią i jadalnią, tworząc otwartą i funkcjonalną strefę dzienną. Obok kuchni znajduje się spiżarnia, a w części wejściowej – wiatrołap z garderobą. Dwie łazienki zwiększają wygodę codziennego użytkowania, a kotłownia dostępna z wiatrołapu została oddzielona od części mieszkalnej. Pomieszczenia rozplanowano wzdłuż praktycznego korytarza, co ułatwia komunikację. Garaż od frontu oraz zadaszenia z przodu i od strony ogrodu dodają funkcjonalności. Elewacja z drewna i kamienia nadaje domowi nowoczesny, a zarazem ciepły wygląd. Gąska III to projekt, który łączy komfort, funkcjonalność i estetykę z rozsądnymi kosztami budowy i użytkowania – idealny do miasta i na przedmieścia.
