- Tylko online
Masz pytania? Chciałbyś negocjować cenę
Zadzwoń! 577 575 011
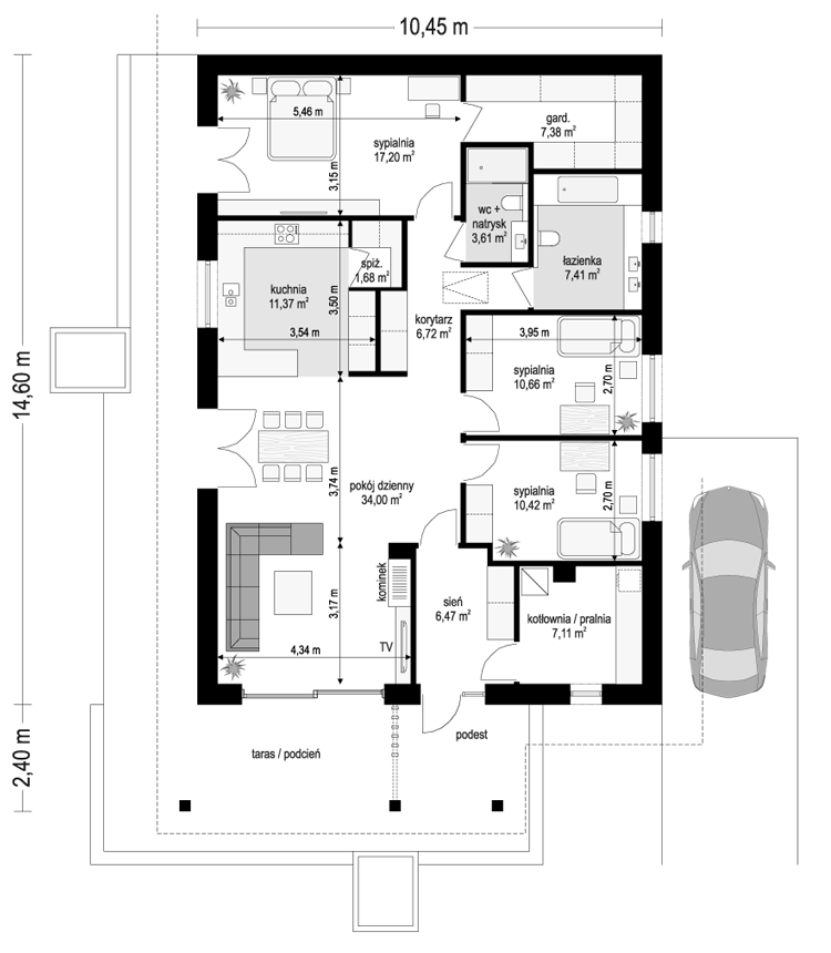
Projekt domu Dom na Południowej jest to projekt niewielkiego parterowego domu jednorodzinnego, przeznaczonego dla 3- 4-osobowej rodziny, na wąską działkę z niekorzystnym usytuowaniem względem drogi dojazdowej, stron świata i nasłonecznienia, czyli dla działek z wjazdem od południa. Wielu Inwestorów posiada takie parcele i przez serię „Domów na Południowej” chcieliśmy udowodnić, że na takiej działce również da się zaprojektować i zbudować bardzo sensowny dom. Budynek zaprojektowano na planie prostokąta z wystającym w kierunku frontu zadaszeniem podzielonym na cześć wejściową, oraz część będącą zadaszeniem tarasu ogrodowego. Dom nie posiada garażu - ma z boku miejsce parkingowe, które można dość łatwo zamienić na wiatę garażową dobudowując dodatkowe zadaszenie. Patrząc na front domu: narożnik prawy to strefa wejściowa, natomiast narożnik lewy to taras i cześć wypoczynkowa. Dom powinien być sytuowany nieco głębiej na działce, aby zapewnić odpowiednie wymiary ogrodu od frontu i z boku domu. Bryła budynku jest prosta, nowoczesna, w ciekawej kolorystyce. Architektura domu łączy w sobie wrażenie solidności i prostoty. Wnętrze domu zaprojektowano dzieląc je na część dzienną od strony tarasu, oraz po drugiej stronie parteru - na część z pokojami sypialnymi. Do wnętrza wchodzimy przez obszerny przedsionek połączony z pomieszczeniem gospodarczym (kotłownia i pralnia), do jednoprzestrzennego wnętrza połączonego salonu, kuchni i holu. Narożny układ salonu doświetla wnętrze od frontu i od boku działki. Kuchnia z półwyspem i spiżarnią jest trochę cofnięta, ale stanowi część przestrzeni dziennej. Całość wnętrza zamykają trzy pokoje sypialne, z apartamentem rodziców z garderobą i własną łazienką. Nad planem parteru przewidziana jest przestrzeń strychowa do dowolnego wykorzystania, dostępna z korytarza za pomocą schodków drabinkowych. Konstrukcja domu jest bardzo prosta, łatwa i niedroga w budowie. Część murowana budynku kończy się na wieńcach nad ścianami parteru, a pozostałą konstrukcję stanowi układ drewnianych wiązarów, będących jednocześnie stropem, oraz więźbą dachową. Takie rozwiązanie znakomicie upraszcza budowę, przyspiesza ją i co najważniejsze - obniża koszt realizacji budynku. Zastosowane rozwiązania, materiały, izolacje i instalacje dają w rezultacie tani, prosty w budowie, energooszczędny dom - niedrogi w późniejszym utrzymaniu. To bardzo praktyczny wybór dla Inwestorów, którzy nie chcę spędzić następnych pięciu lat na budowie i kolejnych dziesięcioleci płacąc kredyt za zbyt duży i zbyt skomplikowany dom marzeń. Realizacja marzenia może być prosta, łatwa i przyjemna - taki właśnie jest Dom na Południowej. Zapraszamy !
