- Tylko online
Masz pytania? Chciałbyś negocjować cenę
Zadzwoń! 577 575 011
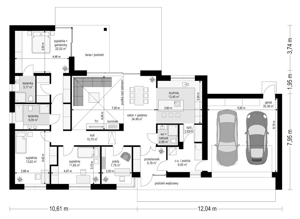
Projekt domu Dom na Szerokiej 3 jest to projektu domu jednorodzinnego z serii „Dom na Szerokiej”. Budynek zaprojektowano jako urozmaiconą wersję wariantową projektów z tej serii, z tylną fasadą ogrodową w układzie litery L dającej poczucie przytulności i intymności na tarasie. Dom ma prostokątną podłużną bryłę, przykrytą czterospadowym dachem z dobudówkami. Bryła domu zbudowana jest na planie L, z szerszym ramieniem w elewacji frontowej. Budynek przeznaczony jest na płytką działkę, z niewielką głębokością między drogą a tyłem parceli, lub na działkę z ogrodem z boku domu ( wówczas sytuowany jest bokiem do drogi dojazdowej). To typowy parterowy dom w stylu bungalow. Architektura budynku jest ciekawa, ale też stonowana - łączy w sobie nowoczesne detale i materiały, z tradycyjną sylwetką parterówki przykrytej wielospadowym dachem pokrytym dachówką. Szerokie reprezentacyjne wejście do domu z pięknymi drzwiami wejściowymi z naświetlem, Piękne narożne szklane okno pokoju- gabinetu, oraz duży podcień nad wejściem i wjazdem do garażu współtworzą atrakcyjny front domu. Od strony elewacji ogrodowej zaprojektowano duże przeszklenia z salonu i sypialni rodziców na taras i wygodny podcień. Detale wykończeniowe, materiały i kolory dobrano tak, aby stanowiły harmonijną całość. Wnętrze zaprojektowano dzieląc je na trzy części: część dzienną – z salonem, nocną z sypialniami i gospodarczą – z garażem i kotłownią. Do domu wchodzimy szerokimi drzwiami do obszernego przedsionka z szafami, albo z garażu - do przedsionka lub - przez spiżarnię – bezpośrednio do kuchni. Pokój dzienny połączony z jadalnią, kuchnią i holem stanowią komfortową przestrzeń dla domowników. Otwarcie przestrzenne nad częścią salonu podnoszące wysokość salonu aż do dachu powiększa dodatkowo wnętrze. Kuchnia z wyspą, jadalnia i salon zorganizowane są wokół centralnej ściany kominkowo – telewizyjnej oddzielającej salon od korytarza prowadzącego do sypialni. W części nocnej mamy cztery pokoje – trzy sypialnie oraz dodatkowy pokój ( gabinet lub zapasową sypialnię). Do dyspozycji domowników są dwie łazienki. Sypialnia rodziców ma dwie duże ściany w zabudowie szafowej, oraz garderobę. Z sypialni master zaprojektowano wyjście na taras narożnym oknem balkonowym. Całość domu zamykają wygodny dwustanowiskowy garaż, oraz strych nad parterem, do wykorzystania na domowy magazyn - graciarnię, dostępny z parteru za pomocą schodków drabinkowych. Konstrukcja domu jest bardzo prosta: ściany parteru do wysokości wieńca + konstrukcja stropu nad parterem i więźby dachowej w postaci układu prefabrykowanych wiązarów drewnianych. Takie rozwiązanie znacznie przyspiesza budowę, upraszcza ją i obniża koszt realizacji domu. W projekcie zastosowano bardzo dobre izolacje, nowoczesne materiały i instalacje, dzięki czemu budynek będzie tani w późniejszej eksploatacji. Dom na Szerokiej 3 to świetna propozycja dla Inwestorów pragnących nowoczesnego, komfortowego parterowego domu o ciekawej urozmaiconej architekturze. Zapraszamy !
