- Tylko online
Masz pytania? Chciałbyś negocjować cenę
Zadzwoń! 577 575 011
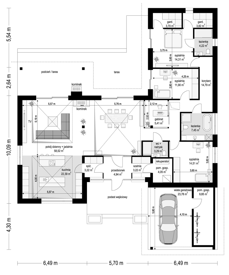
Projekt domu Hanka jest to projekt wyjątkowego parterowego domu jednorodzinnego z serii o nazwie ”Hanka”. Dom zaprojektowany jest na planie litery „H”, przykryty dwuspadowymi dachami, z całym programem użytkowym znajdującym się na jednej kondygnacji parteru. Forma budynku, układ funkcjonalny i rozmieszczenie pomieszczeń - wszystkie te elementy zostały zaprojektowane tak, aby zapewnić właścicielom maksymalny komfort i wygodę mieszkania. Architektura domu łączy w sobie związki z przyrodą, poszanowanie dla natury z nowoczesną formą architektoniczną. Dom zaprojektowano blisko ziemi, blisko ogrodu. Wnętrza są ściśle połączone z otaczającymi budynek tarasami, podcieniami, wiatami, podestami, rozszerzając wnętrze na działkę Inwestorów. Do domu wchodzimy przez szerokie reprezentacyjne drzwi wejściowe z naświetlami. Po bokach elewacji frontowej mamy ogromne okno kuchenne, oraz wygodną wiatę garażową. Od strony ogrodu głównym elementem kształtującym sylwetkę jest duże zadaszenie tarasu wsparte na słupach, z szerokimi przeszkleniami salonu. Dachy uformowane w kształt litery „H” urozmaicają bryłę domu i dodają jej uroku. Odpowiednio dobrane detale i materiały wykończeniowe pozwoliły stworzyć w efekcie przyjemną architekturę podmiejskiej komfortowej willi. Wnętrze podzielono na dwie części: jednoprzestrzenną część dzienną, z salonem, jadalnią i kuchnią, oraz cześć z pokojami sypialnymi. Do domu wchodzimy przez oszklony przedsionek wprost do wielkiego holu, który pełni również funkcję pokoju stołowego - jadalni i otwiera się szerokim oknem na taras i otaczający dom ogród. Pomieszczenie ma otwarty do czubka dachu sufit, z dodatkowym doświetleniem oknami połaciowymi. Dalej na lewo przechodzimy do wygodnego salonu ze ścianą telewizyjną i ścianą z kominkiem, z otwarciem przestrzennym sufitu, oraz otwarciem na zadaszenie tarasu. Dopełnieniem wnętrza jest luksusowa piękna kuchnia z aż dwiema dużymi wyspami, z dużą ilością blatów roboczych i pełnych zabudów. Do kuchni możemy dostać się też przez spiżarnię do przedsionka i wygodnego car-portu - wiaty garażowej. Wiata może być pojedyncza z dodatkowym pomieszczeniem gospodarczym, lub podwójna - wedle decyzji Klienta. W części nocnej domu mamy różny układ pokoi w różnych wersjach wariantowych projektu „Hanka”. W Hance 1 mamy: przeszklony, połączony wizualnie z wnętrzem dziennym pokój do pracy - gabinet, dwie sypialnie dziecięce z wygodną łazienką, oraz apartament rodziców z dwiema garderobami – jej i jego, oraz łazienką. Wnętrze jest superkomfortowe i zapewni optymalne warunki mieszkania nawet najbardziej wymagającemu Inwestorowi. Dom mimo rozbudowanej bryły ma bardzo prostą konstrukcję, będzie dość łatwy w budowie, a dzięki zastosowanym świetnym izolacjom i nowoczesnym instalacjom budynek będzie energooszczędny i tani w eksploatacji. „Hanka” to dom z charakterem, dla Inwestorów szukających oryginalnych nietuzinkowych rozwiązań - marzących o mieszkaniu na parterze blisko ogrodu. Zapraszamy !
