- Tylko online
Masz pytania? Chciałbyś negocjować cenę
Zadzwoń! 577 575 011
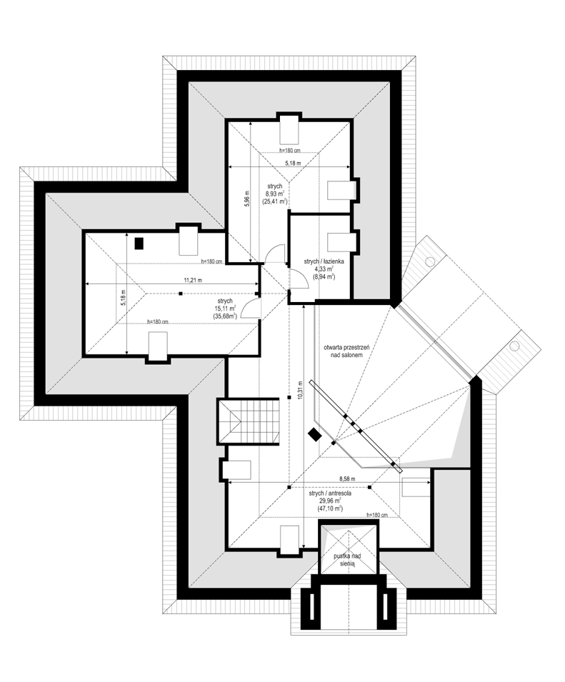
Projekt domu Willa Parkowa 7 jest kolejną wersją projektu z cieszącej się popularnością serii "Willi Parkowych". wariant zwężony, mieszczący się na węższej działce, o szerokości nieco powyżej 26 metrów. Budynek jest klasyczną podmiejską willą, swoim stylem nawiązujący do architektury dworkowej i rezydencyjnej. Dom jest parterowy, o rozbudowanym rzucie w kształcie litery „T”. Bryła budynku przykryta jest wielospadowym dachem, z charakterystycznym pięknym zadaszeniem tarasu ustawionym pod kątem 45 stopni. Połączenie ciekawego kształtu budynku, oryginalnego i funkcjonalnego wnętrza, dopracowanych detali elewacji, razem dają reprezentacyjną willę, która z pewnością wyróżni się spośród wielu zwykłych domów. Front budynku zaprojektowano w taki sposób, aby podkreślić strefę wejściową. Garaż został celowo cofnięty w głąb działki, a na pierwszym planie jest dwukondygnacyjny portyk wejściowy, z pięknymi drzwiami z naświetlami bocznymi i łukową kolebką. W elewacji frontowej zaprojektowano narożne wykuszowe okno kuchenne, wysunięte poza obrys ściany, dzięki czemu blat kuchenny jest głębszy. Cofnięte wrota garażowe tworzą od frontu wygodny podjazd-dziedziniec, na którym bez problemu zmieszczą się nawet 4 dodatkowe auta. Od strony ogrodu mamy ciekawie skomponowane dwie połączone elewacje – boczną i tylną, przełamane skośną ścianą salonu z pięknym przeszkleniem, zakończonym łukowym naświetlem, oraz zadaszeniem tarasu na kolumnach. Taras ogrodowy znajduje się w narożniku domu, otwierając widok na tył i bok domu. Dzięki mniejszej szerokości domu jego bryła bez trudu wpasuje się na niezbyt szeroką parcelę. Wszystkie elewacje domu ozdobione zostały gzymsami, opaskami okien i boniowaniami narożników ścian, nawiązując do ponadczasowej klasycznej architektury i dodając budynkowi eleganckiego sznytu. Wnętrze willi zaprojektowano dzieląc dom na części. Od frontu dostajemy się przez reprezentacyjny podwyższony przedsionek z szatnią wprost do przestrzeni dziennej, z salonem, jadalnią i holem, urozmaiconej ustawioną na środku ścianą kominkowo-telewizyjną, oraz pięknym otwarciem przestrzennym sufitu, z antresolą i szerokim widokiem z salonu na taras i ogród. Z prawej strony wejścia mamy dodatkowy pokój oraz dzienną toaletę, z lewej strony znajduje się duża kuchnia z wyspą, kątem do codziennych posiłków, spiżarnią i przejściem do części gospodarczo -garażowej domu. W części gospodarczej znajdują się pralnia, obszerna kotłownia i dwustanowiskowy garaż. W części tylnej domu, bliżej ogrodu zaprojektowano sypialnie domowników, odgrodzone akustycznie korytarzem. Znajdują się tutaj dwie sypialnie dziecięce z łazienką, oraz apartament master z łazienką i garderobą, oraz własnym mini tarasem porannym. Na parterze domu udało się zmieścić wszystkie pomieszczenia potrzebne domownikom do funkcjonowania. Powyżej znajduje się dodatkowo duży strych, który bez problemu można zaadaptować na poddasze użytkowe. Może ono pełnić rolę dodatkowej antresoli będącej przedłużeniem salonu z dwoma dodatkowym pokojami, albo można oddzielić tą przestrzeń ściankami i zamknąć ją jako strych - domowy magazyn. Willa Parkowa 7 jest atrakcyjnym, stylowym domem, z pewnością nie najprostszym w budowie, ale dzięki zastosowanym dobrym izolacjom i nowoczesnym materiałom i instalacjom - niedrogim w późniejszej eksploatacji. To propozycja dla Inwestorów, którzy marzą o domu wyjątkowym, oryginalnym, nietuzinkowym. Dla Inwestorów, którzy uwielbiają stylowe wille i podoba im się koncept domu parterowego, bez konieczności biegania po schodach. Zapraszamy do obejrzenia wszystkich projektów domów z serii Willa Parkowa: https://www.mgprojekt.com.pl/willa-parkowa, https://www.mgprojekt.com.pl/willa-parkowa-2, https://www.mgprojekt.com.pl/willa-parkowa-3, https://www.mgprojekt.com.pl/willa-parkowa-4, https://www.mgprojekt.com.pl/willa-parkowa-5, https://www.mgprojekt.com.pl/willa-parkowa-6, https://www.mgprojekt.com.pl/willa-parkowa-6-d, https://www.mgprojekt.com.pl/willa-parkowa-7, https://www.mgprojekt.com.pl/willa-parkowa-8-a, https://www.mgprojekt.com.pl/willa-parkowa-8-b, https://www.mgprojekt.com.pl/willa-parkowa-9, https://www.mgprojekt.com.pl/willa-parkowa-10, https://www.mgprojekt.com.pl/willa-parkowa-b, https://www.mgprojekt.com.pl/willa-parkowa-c, https://www.mgprojekt.com.pl/willa-parkowa-d.
