- Tylko online
Masz pytania? Chciałbyś negocjować cenę
Zadzwoń! 577 575 011
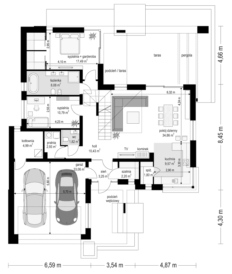
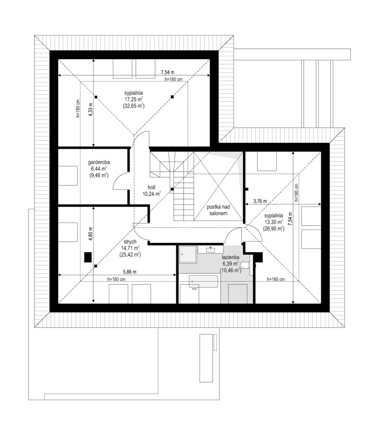
Projekt domu Hiacynt 3 jest wersją wariantową projektu z popularnej serii "Hiacyntów". Jest to pomniejszona wersja bazowego projektu, o powierzchni użytkowej około 150 m2. Budynek ma mniejszą powierzchnię zabudowy, jest węższy - dzięki czemu zmieści się swobodnie na mniejszej działce. Dom jest też tańszy w realizacji, ale został zmniejszony w taki sposób, aby nie ustępować bardzo bazowej wersji domu pod względem estetyki, czy funkcjonalności. Budynek zaprojektowano jako parterowy z poddaszem użytkowym. Parter domu zakomponowano na planie litery "T". Dom przykryty jest wielospadowym dachem, z fragmentem płaskiego zadaszenia nad garażem. Od strony ogrodu zaprojektowano częściowo osłonięty taras - patio, mieszczący się między ścianami budynku i zamykającą go żelbetową belką ze słupem i pergolą. Nowoczesna architektura domu podkreślona została ciekawymi detalami wykończeniowymi. Duże przeszklenia elewacji, narożne okna, kontrastujące z bielą ścian fragmenty obłożone betonem architektonicznym i drewnem - wszystkie te elementy tworzą spójną kompozycyjnie całość. Podziały elewacji na poziome pasy w linii okien i powyżej, w linii nadproży nad oknami, tworzą ramy dla strefy wejściowej od frontu domu i strefy wypoczynkowej od strony tarasu ogrodowego. Wnętrze budynku zaprojektowano w sposób pozwalający mieszkać domownikom tylko na parterze - można też wykorzystywać całość domu z poddaszem. Do budynku wchodzimy reprezentacyjnymi drzwiami z naświetlami wprost do holu i części dziennej. Nad pokojem dziennym zaprojektowano pustkę i otwarcie przestrzenne z antresolą poddasza, pięknie powiększającą przestrzeń domu. W salonie przewidziano miejsce na meble wypoczynkowe na wprost ściany kominkowo – telewizyjnej, oraz wygodny stół jadalny. Częściowo otwarta kuchnia ze spiżarnią i pięknym narożnym oknem powiększa cześć dzienną. Szerokie drzwi balkonowe otwierają wnętrze na taras i ogród. Na parterze przewidziano dodatkowo apartament rodziców z garderobami i łazienką, oraz dodatkowy pokój - sypialnię lub gabinet. Przy strefie wejściowej umieszczono dwustanowiskowy garaż, kotłownię i pomieszczenie pralni. Na poddaszu miejsce znalazły trzy pokoje sypialne z łazienką i garderobą. Dom został zaprojektowany jako energooszczędny. Ma bardzo dobre izolacje termiczne i nowoczesne instalacje, dzięki czemu będzie niedrogi w utrzymaniu. Hiacynt 3 to doskonała propozycja dla Inwestorów szukających nowoczesnego, komfortowego domu z oryginalnymi ciekawymi rozwiązaniami architektonicznymi. Zapraszamy do zapoznania się z innymi projektami: projekt domu Hiacynt, projekt domu Hiacynt 2, projekt domu Hiacynt 4, projekt domu Hiacynt 5, projekt domu Hiacynt 6., projekt domu Hiacynt 7, projekt domu Hiacynt 7 B, projekt domu Hiacynt 8. Projekty dostępne są w odbiciu lustrzanym.
