- Tylko online
Masz pytania? Chciałbyś negocjować cenę
Zadzwoń! 577 575 011
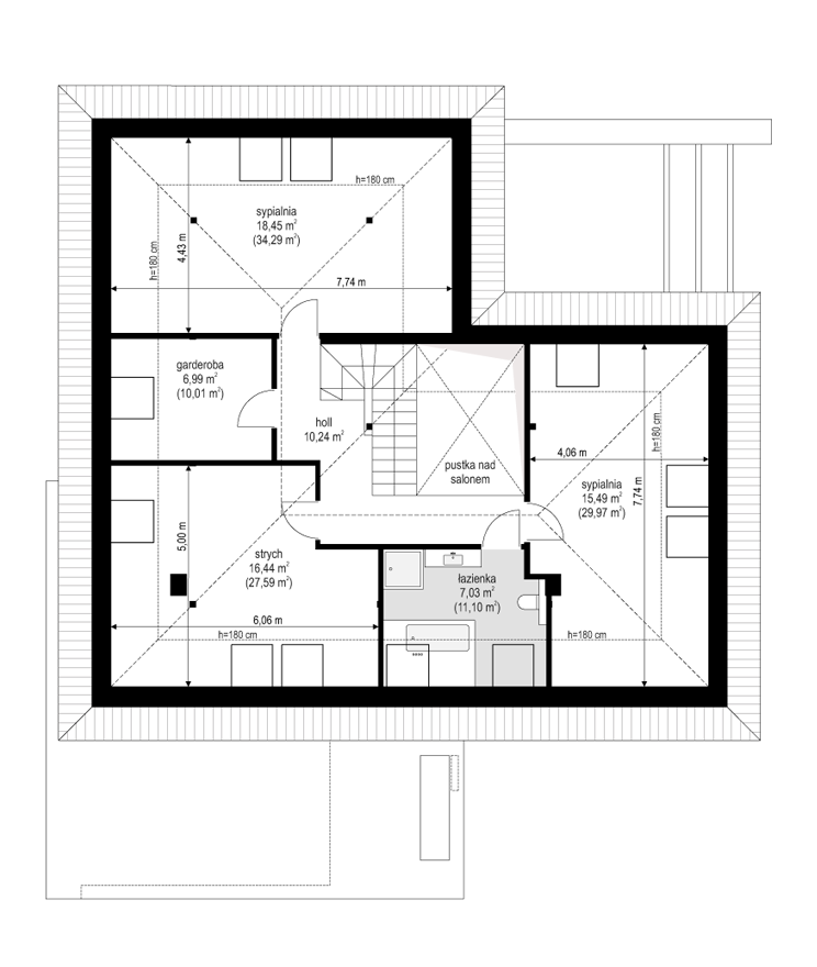
Projekt domu Hiacynt 4 jest wersją wariantową projektu z popularnej serii „Hiacyntów”. Tym razem jest to projekt nieco zmniejszony w stosunku do wersji bazowej, o powierzchni użytkowej ca 185 m2. Dom zaprojektowano na takiej samej zasadzie jak projekt bazowy, wykorzystując ten sam język detali architektonicznych, podobny kształt bryły i układ funkcjonalny. Dom jest po prostu proporcjonalnie zmniejszony. Hiacynt 4 to budynek parterowy z poddaszem użytkowym, zakomponowany na planie litery „T”, przykryty wielospadowym dachem, z częścią dachu płaskiego nad garażem. Elementami wyróżniającymi sylwetkę budynku są : od frontu - zadaszona strefa wejściowa podcieniem i szerokimi drzwiami frontowymi z naświetlami, a od tyłu - narożnik tarasu ogrodowego zamknięty ścianami i żelbetową ramą zakończoną pergolą. Ściany domu zostały zaprojektowane na zasadzie kontrastu białych fragmentów z okładzinami z betonu architektonicznego i drewna. Duże przeszklenia dodatkowo zdobią elewacje i otwierają wnętrze na otaczający ogród. Wnętrze domu zostało zaprojektowane w podobny sposób do projektu bazowego Hiacynt 1, ale jest nieco mniejsze. Do domu wchodzimy ładnym przedsionkiem z szatnią do holu połączonego z pokojem dziennymi i kuchnią. Na wprost wejścia znajdują się reprezentacyjne schody, połączone z pustką nad salonem i antresolą poddasza. Dodatkowe pokoje na parterze to cześć państwa domu - z garderobami, łazienką i wyjściem na taras, dodatkowy pokój - sypialnia lub gabinet, oraz część gospodarcza z dwustanowiskowym garażem, kotłownią i pomieszczeniem pralni. Na poddaszu swoje miejsce mają trzy pokoje sypialne, garderoba i łazienka. Cały budynek został zaprojektowany jako energooszczędny, z bardzo dobrymi izolacjami termicznymi i wykorzystaniem nowoczesnych instalacji. Dom będzie niedrogi w późniejszym utrzymaniu. Hiacynt 4 to wymarzona propozycja dla Inwestorów planujących wybudować oryginalny komfortowy dom, z rozbudowanym parterem, z nowoczesnymi i energooszczędnymi rozwiązaniami. Świetna propozycja dla tych osób, którym Hiacynt 1 nie mieści się na działce, lub potrzebują wybudować po prostu dom trochę mniejszy i trochę mniej kosztowny. Zapraszamy do zapoznania się z innymi projektami: projekt domu Hiacynt, projekt domu Hiacynt 2, projekt domu Hiacynt 3, projekt domu Hiacynt 5, projekt domu Hiacynt 6., projekt domu Hiacynt 7, projekt domu Hiacynt 7 B, projekt domu Hiacynt 8. Projekty dostępne są w odbiciu lustrzanym.
