- Tylko online
Masz pytania? Chciałbyś negocjować cenę
Zadzwoń! 577 575 011
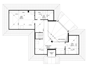
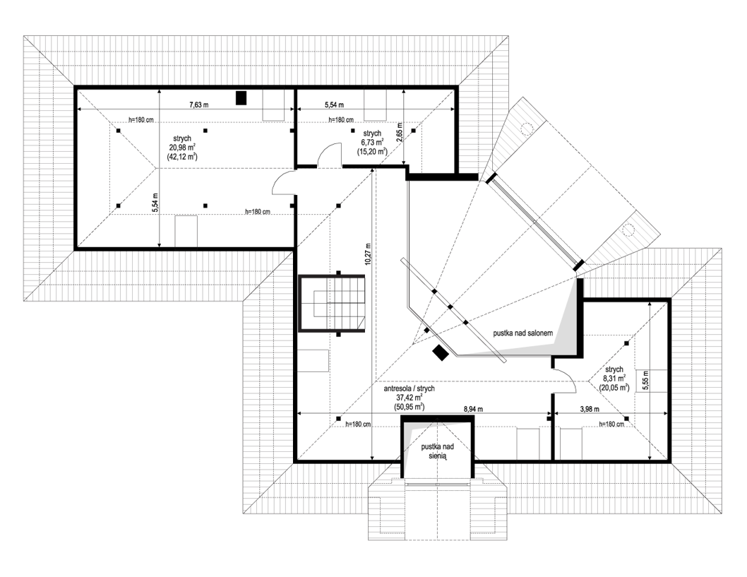
Projekt domu Willa Parkowa 6 D jest wersją popularnego projektu Willa Parkowa 6, tym razem jest to wariant D - dom o zmniejszonej o około 50 m2 powierzchni, o mniejszej powierzchni zabudowy i wymiarach zewnętrznych. Willa mimo zmniejszonych wymiarów zachowuje wszystkie rozwiązania funkcjonalne i estetyczne pierwotnego budynku. Willa Parkowa 6 D to komfortowa podmiejska mini-rezydencja, o stylowej architekturze, łącząca w sobie klasyczną estetykę, z nowocześnie zaprojektowanym wnętrzem. Budynek zaprojektowany jest w kształcie litery „L”, z dodatkowo dobudowaną częścią garażową. Bryła budynku tworzy dwa wewnętrzne dziedzińce. Frontowy od strony garażu - dzięki czemu brama garażowa jest wepchnięta wgłąb działki i oddzielona od reprezentacyjnego wejścia. Drugi wewnętrzny dziedziniec od strony ogrodowej, gdzie boczne ściany tworzą wewnętrzne patio z tarasem i ciekawym narożnym wyjściem z salonu do ogrodu. Front domu zdobi elegancki portyk wejściowy, z wysokimi drzwiami zakończonymi łukowym naświetlem. Dodatkowym elementem zdobiącym elewację frontową jest szerokie piękne narożne okno kuchenne z wykuszem. Od strony ogrodowej pierwsze skrzypce gra duże okno z salonu na taras, z łukowym naświetlem łączącym dwukondygnacyjny salon z pięknie zadaszonym podcieniem. Wnętrze domu zaprojektowano wokół centralnie ustawionego salonu, do którego wchodzimy z przedsionka i holu. Salon dzieli się na dwie części - wypoczynkową z kanapami ustawionymi naprzeciwko pięknie wyeksponowanej ściany kominkowo – telewizyjnej, oraz część jadalnianą z wygodnym stołem. Po przeciwnej stronie domu za ścianą kominkową znajduje się piękna kuchnia ze stołem do szybkich codziennych posiłków. Kuchnia łączy się funkcjonalnie z częścią techniczno-gospodarczą domu - z pomieszczeniem pralni, garażem i kotłownią. Dzięki temu chodzenie z zakupami z garażu będzie ułatwione. W dwóch skrajnych skrzydłach budynku zaprojektowano sypialnie, rozdzielając je na część z sypialniami dziecięcymi z łazienką, oraz na oddzielną część z sypialnią rodziców – z własną garderobą i łazienką. Obok sypialni master przewidziano dodatkowy pokój – gabinet. Całość funkcji użytkowej mieści się na parterze domu, ale nad parterem mamy jeszcze do dyspozycji bardzo ładną przestrzeń strychową, którą można pozostawić jako strych, lub zaadaptować na dodatkowe poddasze użytkowe. Może tutaj być pozostawiona jedna duża otwarta przestrzeń, lub można wydzielić pokoje - dowolnie, wedle inwencji właścicieli. Nad częścią garażową zaprojektowano wydzielony strych -magazyn. Budynek zaprojektowano z wykorzystaniem nowoczesnych materiałów i technologii. Dom, dzięki dobrym izolacjom i wydajnym instalacjom jest energooszczędny i będzie niedrogi w późniejszym utrzymaniu. Willa Parkowa 6D to doskonała propozycja dla osób szukających nietuzinkowej oryginalnej architektury. Marzących o reprezentacyjnej willi, ale bez niepotrzebnej ekstrawagancji i przesady. Zapraszamy ! Zapraszamy do obejrzenia wszystkich projektów domów z serii Willa Parkowa: https://www.mgprojekt.com.pl/willa-parkowa, https://www.mgprojekt.com.pl/willa-parkowa-2, https://www.mgprojekt.com.pl/willa-parkowa-3, https://www.mgprojekt.com.pl/willa-parkowa-4, https://www.mgprojekt.com.pl/willa-parkowa-5, https://www.mgprojekt.com.pl/willa-parkowa-6, https://www.mgprojekt.com.pl/willa-parkowa-6-d, https://www.mgprojekt.com.pl/willa-parkowa-7, https://www.mgprojekt.com.pl/willa-parkowa-8-a, https://www.mgprojekt.com.pl/willa-parkowa-8-b, https://www.mgprojekt.com.pl/willa-parkowa-9, https://www.mgprojekt.com.pl/willa-parkowa-10, https://www.mgprojekt.com.pl/willa-parkowa-b, https://www.mgprojekt.com.pl/willa-parkowa-c, https://www.mgprojekt.com.pl/willa-parkowa-d. Projekty są również dostępne w odbiciu lustrzanym.
