- Tylko online
Masz pytania? Chciałbyś negocjować cenę
Zadzwoń! 577 575 011
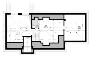
Projekt domu Willa Parkowa 8 B jest kolejną propozycją domu jednorodzinnego z popularnej serii „Willi Parkowych”. Dom został zaprojektowany jako parterowy, z przestrzenią poddasza / strychu do dowolnego wykorzystania i aranżacji. Budynek przykryto wielospadowym dachem i zaprojektowano na planie prostokąta, z dobudowaną z boku częścią garażowo -techniczną. Cały program użytkowy domu zmieszczono na parterze, aby zapewnić mieszkańcom wygodę życia na jednym poziomie, bez konieczności ciągłego chodzenia po schodach. Styl Willi Parkowej to architektura dworkowo – rezydencyjna w nowoczesnym ujęciu - dworek XXI wieku. Front domu ozdobiono jest pięknym portykiem wejściowym z szerokimi drzwiami frontowymi z naświetlami i łukowym świetlikiem doświetlającym podniesiony westybul. Od strony ogrodu urody dodaje zadaszenie tarasu z dużym przeszkleniem z salonu, z łukowymi oknami i kominkiem dwustronnym. Dom jest reprezentacyjny, elegancki, a za razem utrzymuje ludzką skalę i powściągliwość. Uroku całej sylwetce domu dodają duże okna z delikatnymi podziałami i pięknymi okiennicami, gzymsy, boniowania i sztukateria. A całość zamyka od góry łagodny proporcjonalny dach. Wnętrze domu podzielono wyraźnie na cześć dzienną - z salonem, część nocną - z pokojami sypialnymi i cześć techniczną - z garażem i kotłownią. Do domu wchodzimy reprezentacyjnym wejściem przez podwyższony przedsionek z sufitem łukowym, do pokoju dziennego łączącego funkcję holu, salonu i jadalni. Od frontu część dzienną zamyka dodatkowo kuchnia z wyspą, spiżarnią i narożnym oknem. Salon zaprojektowano z otwarciem przestrzennym – pustką, łącząc przestrzennie parter z antresolą na poddaszu - będącą przedłużeniem pokoju dziennego. W części sypialnej mamy trzy sypialnie dziecięce z łazienką, oraz sypialnię master z własną łazienką i garderobą. Dalej zaprojektowano dostępną z korytarza przez śluzę podwójnych drzwi część gospodarczą, z pomieszczeniami kotłowni i dwustanowiskowym garażem. Na poddaszu mamy do dyspozycji przestrzeń do indywidualnej aranżacji, w której można uzyskać dwa lub trzy dodatkowe pokoje. W projekcie zastosowano nowoczesne instalacje i bardzo dobre ocieplenia, dzięki czemu budynek jest energooszczędny i będzie niedrogi w późniejszej eksploatacji. Willa Parkowa 8 B to jedna z mniejszych wersji projektów z tej serii. Dom idealny dla osób marzących o pięknym romantycznym prawdziwym domu, osadzonym swoją formą w tradycji, ale będącym też zupełnie współczesną komfortową willą. Zapraszamy ! Zapraszamy do obejrzenia wszystkich projektów domów z serii Willa Parkowa: https://www.mgprojekt.com.pl/willa-parkowa, https://www.mgprojekt.com.pl/willa-parkowa-2, https://www.mgprojekt.com.pl/willa-parkowa-3, https://www.mgprojekt.com.pl/willa-parkowa-4, https://www.mgprojekt.com.pl/willa-parkowa-5, https://www.mgprojekt.com.pl/willa-parkowa-6, https://www.mgprojekt.com.pl/willa-parkowa-6-d, https://www.mgprojekt.com.pl/willa-parkowa-7, https://www.mgprojekt.com.pl/willa-parkowa-8-a, https://www.mgprojekt.com.pl/willa-parkowa-8-b, https://www.mgprojekt.com.pl/willa-parkowa-9, https://www.mgprojekt.com.pl/willa-parkowa-10, https://www.mgprojekt.com.pl/willa-parkowa-b, https://www.mgprojekt.com.pl/willa-parkowa-c, https://www.mgprojekt.com.pl/willa-parkowa-d. Projekty są również dostępne w odbiciu lustrzanym.
