- Tylko online
Masz pytania? Chciałbyś negocjować cenę
Zadzwoń! 577 575 011
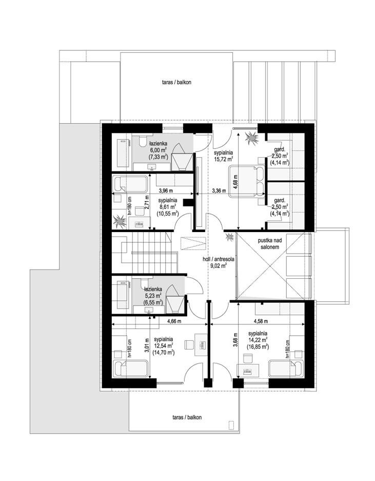
Projekt domu Amber 2 jest to projekt domu jednorodzinnego z serii „Amber”. Jest to parterowy dom z poddaszem użytkowym, zaprojektowany na planie prostokąta, przykryty dwuspadowym bezokapowym dachem, z wbudowaną parterową częścią garażową i zadaszeniem tarasu od strony ogrodu. Budynek zaprojektowano w nowoczesnej stylistyce domu -stodoły, z dachem przykrytym blachą na rąbek stojący i elewacjami wykończonymi częściowo białym tynkiem i płytkami klinkierowymi. Duże przeszklenia okien kontrastują z bielą tynków i urozmaicają sylwetkę. Poziomy pas płytek klinkierowych dodaje budynkowi sznytu i ociepla bryłę. Dzięki takiemu połączeniu materiałów i elementów bryły dom jest nowoczesny, dynamiczny i przyciąga wzrok. Elewację frontową ozdobiono szerokimi drzwiami wejściowymi z naświetlami i pięknym narożnym oknem kuchennym. Od strony ogrodu z kolei główną rolę odgrywa szerokie okno balkonowe salonu i zadaszenie tarasu. Od strony elewacji bocznej zaprojektowano dwupiętrowe przeszklenie jadalni z antresolą. Wnętrze domu podzielono na część dzienną i techniczną na parterze, oraz sypialnie na poddaszu. Na parterze przestrzeń dzienną stanowi salon z meblami wypoczynkowymi przy ścianie telewizyjno-kominkowej, jadalnia z otwarciem przestrzennym na antresolę na poddaszu, hol i kuchnia z wyspą i spiżarnią. Z holu dostać się możemy do dodatkowego pokoju z łazienką, oraz części gospodarczej z garażem i kotłownią. Na poddaszu mamy do dyspozycji cztery pokoje sypialne, z dwiema łazienkami.Sypialnia rodziców stanowi oddzielny apartament z własną łazienką i garderobą. Dzięki wysokim ścianom kolankowym pokoje na poddaszu mają małe skosy i przestrzeń podłóg można wykorzystać niemal w całości. Nad poddaszem przewidziano dodatkowo spory strych. W projekcie zastosowano nowoczesne materiały i technologie, energooszczędne instalacje i dobre izolacje przegród. Dzięki temu koszt utrzymania domu będzie niewygórowany. Prosta konstrukcja budynku powinna ułatwić i przyspieszyć budowę stanu surowego. „ Amber 2 ” stanowi doskonałą propozycję domu dla Inwestorów planujących budowę średniej wielkości domu w stylistyce „stodoły”, z nieprzesadzoną, powściągliwą, a jednocześnie nowoczesną architekturą. Zapraszamy do zapoznania się ze wszystkimi domami z tej serii: https://www.mgprojekt.com.pl/amber, https://www.mgprojekt.com.pl/amber-2, https://www.mgprojekt.com.pl/amber-3, https://www.mgprojekt.com.pl/amber-4.
