- Tylko online
Masz pytania? Chciałbyś negocjować cenę
Zadzwoń! 577 575 011
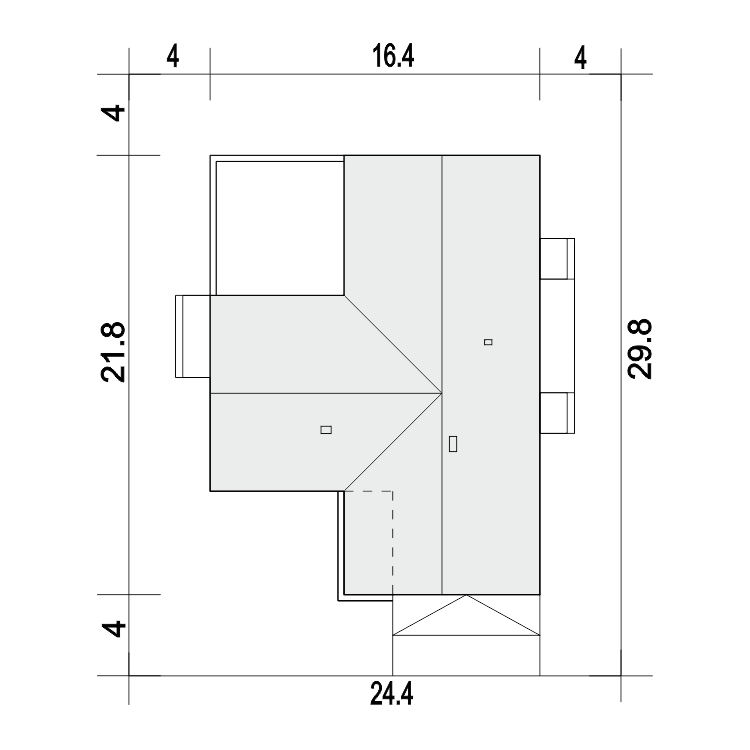
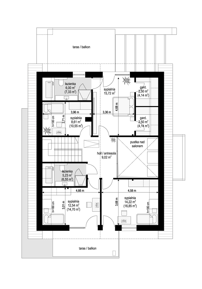
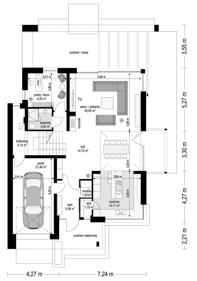
Projekt domu Amber 3 jest to projekt parterowego domu jednorodzinnego z poddaszem użytkowym, z serii „Amber” – projekt Amber 3. Budynek zaprojektowano na prostokątnym rzucie, przykrytym dwuspadowym dachem. Prosta bryła domu została urozmaicona dobudowanym garażem i zadaszeniem nad podestem wejściowym od frontu, oraz dużym zadaszeniem nad tarasem od strony ogrodowej. Architektura domu łączy w sobie prostotę formy, z atrakcyjnym detalem i dobrze dobranymi materiałami wykończeniowymi.Tradycyjna sylwetka budynku połączona została tutaj z dużymi przeszkleniami i modnymi kontrastowymi okładzinami ścian, dodającymi „Amberowi” dynamiki i nowoczesnego sznytu.Kształt budynku i układ okien pozwala na wybudowanie go na dość wąskiej parceli. Wnętrze podzielone zostało na część dzienną i gospodarczą na parterze, oraz pokoje sypialne na poddaszu. Do środka wchodzimy reprezentacyjnymi drzwiami frontowymi, przez przedsionek z szatnią, do holu i pokoju dziennego. Znajdująca się od frontu domu kuchnia z wyspą i spiżarnią stanowi dopełnienie pokoju dziennego. W salonie wydzielono jadalnię z otwarciem przestrzennym na antresolę na poddaszu, oraz część wypoczynkową ze ścianą telewizyjno-kominkową i pięknymi szerokimi drzwiami balkonowymi na zadaszony taras. Na parterze zaprojektowano dodatkowy pokój z łazienką, oraz garaż z kotłownią. Poddasze użytkowe to cztery pokoje sypialnie z dwiema łazienkami, w tym oddzielny apartament rodziców z własną łazienką i garderobą. Dzięki wysokim ścianom kolankowym pokoje na poddaszu mają małe skosy i przestrzeń podłóg można wykorzystać niemal w całości. W projekcie zastosowano nowoczesne materiały i technologie, energooszczędne instalacje i dobre izolacje przegród. Dzięki temu koszt późniejszej eksploatacji budynku będzie niski. Dom ma prostą konstrukcję i nie jest skomplikowany w budowie. „ Amber 3” to dobra propozycja dla Inwestorów planujących budowę średniej wielkości domu jednorodzinnego z poddaszem użytkowym, pasującego na wąską parcelę. Domu o rozsądnej wielkości, atrakcyjnym wyglądzie i funkcjonalnym wnętrzu. Zapraszamy do zapoznania się ze wszystkimi domami z tej serii: https://www.mgprojekt.com.pl/amber, https://www.mgprojekt.com.pl/amber-2, https://www.mgprojekt.com.pl/amber-3, https://www.mgprojekt.com.pl/amber-4.
